View gallery
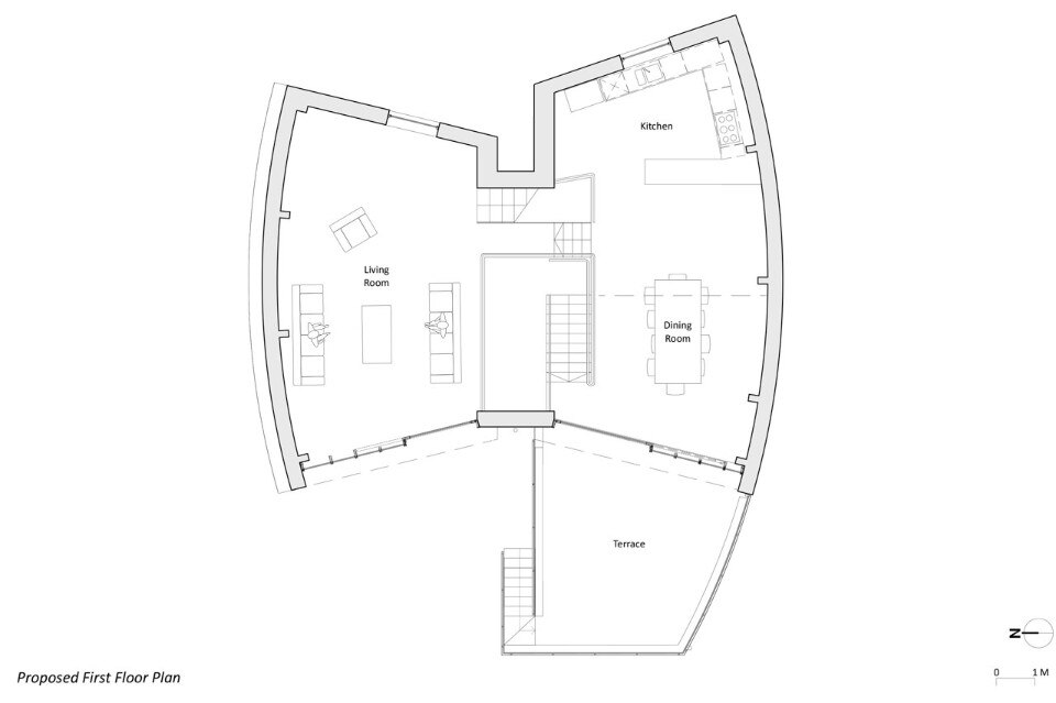
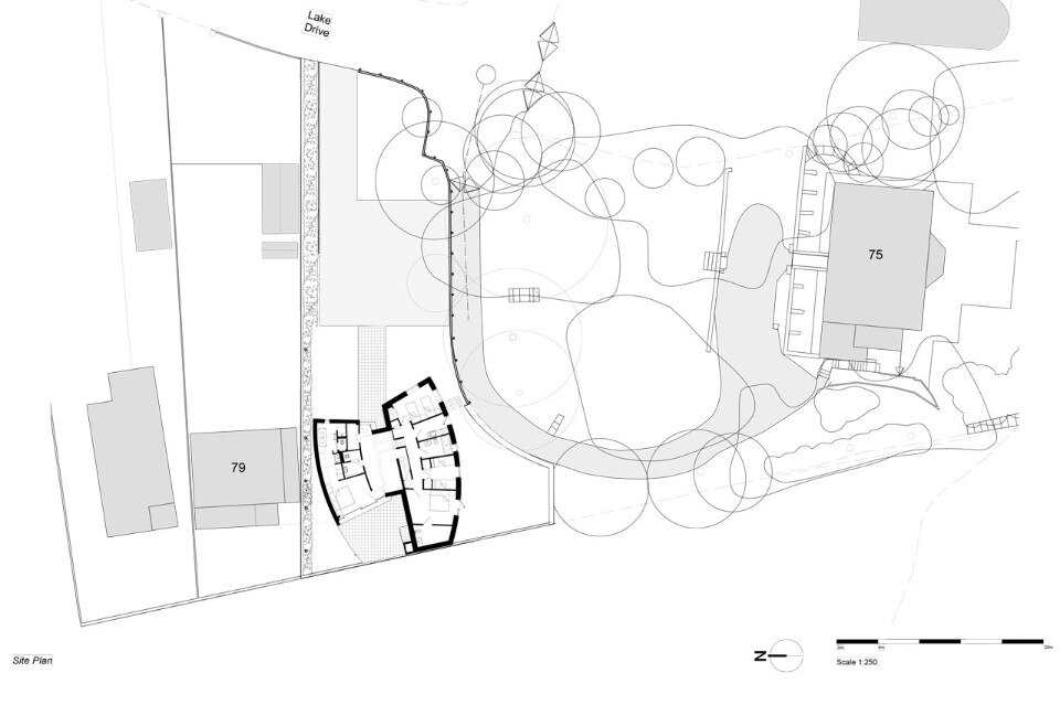
The form of the house, with its double-curve on plan, is designed to allow the volume within this context, and to shy away from the established street pattern and recede into the arc of the trees. It sits at the end of the suburban road, but connects strongly to wild heathland beyond. The Houseboat is tar-black, sitting on a weathered sea wall. The solid base is made from roughcast concrete, and contains the bedrooms, tightly packed as in the hold of a ship. The master bedroom sits on the entrance level, with further rooms a half-level down.
The Houseboat, Poole, UK
Program: single-family house
Architect: Mole Architects – Meredith Bowles, Ian Bramwell
Structural engineering: Sinclair Johnston & Partners
Cost consultant: Orbell Associates
Landscape designer: Coe Design
Area: 221 sqm
Completion: 2017
