View gallery
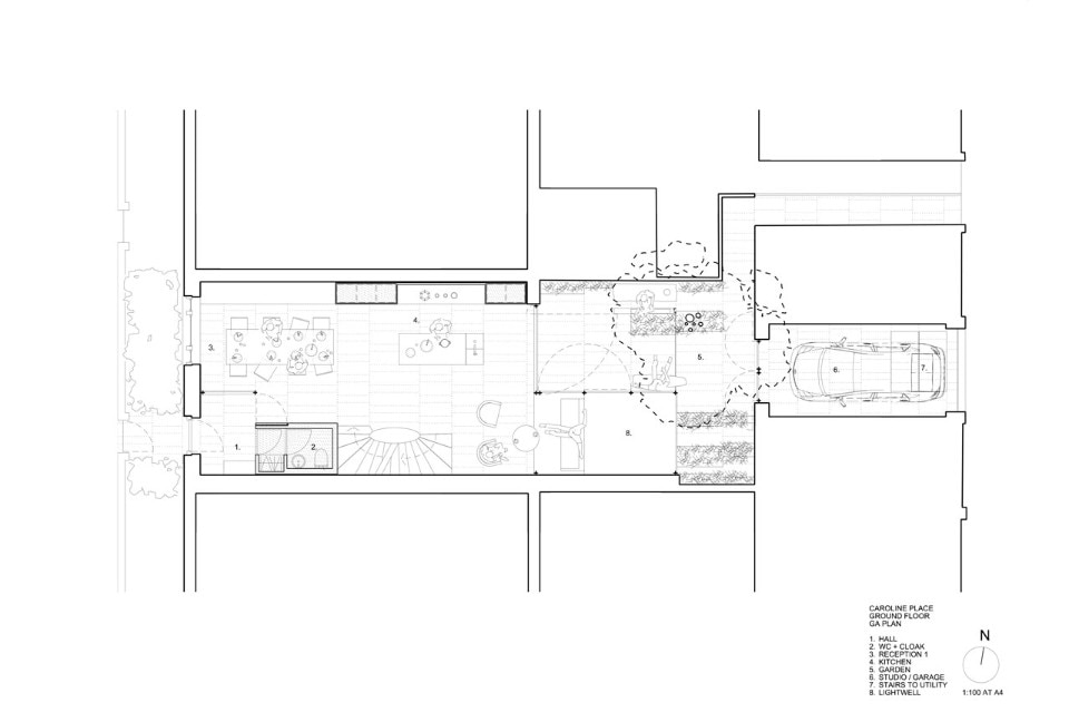
Some of the internal new brass detailing was brought forward in the form of door furniture to present some indication of the newer intervention. Early internal open up works revealed remains of original travertine flooring, densely plastered walls behind the 1970’s pine boarding and one room lined with dark cherry timber paneling, which have been restored. The open plan arrangement is further accentuated by a clearer tabula rasa across each floor with the removal of downstand beams and brick nibs that had been structurally necessary at the time.
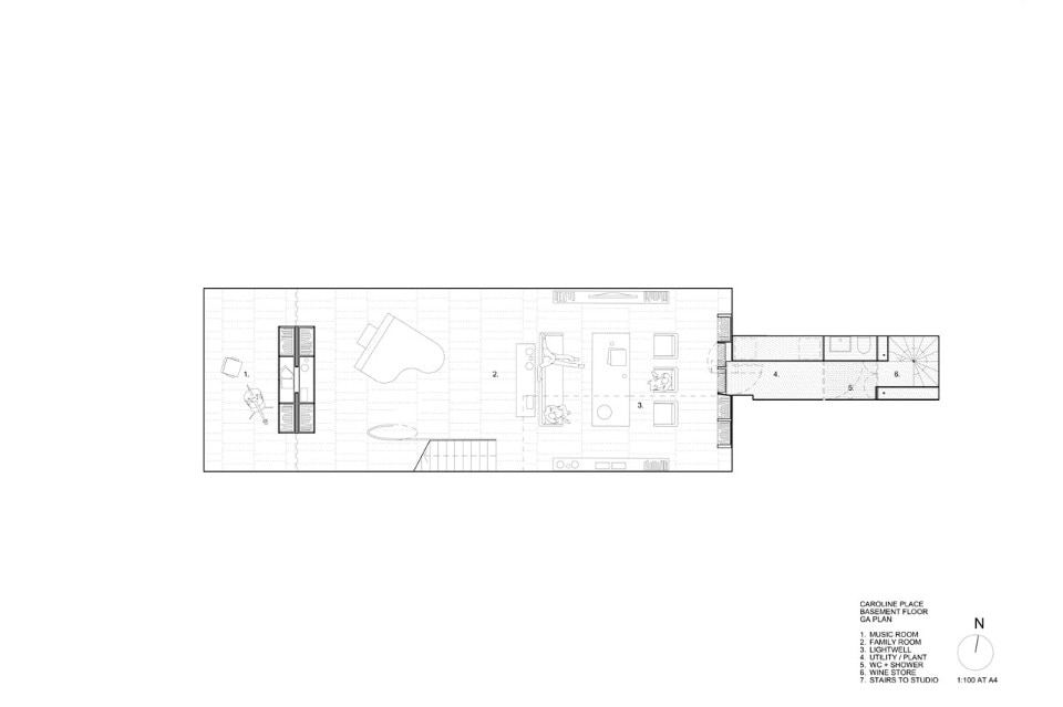
Caroline Place, London
Program: apartment renovation
Architect: Amin Taha + Groupwork
Structural engineering: Webb Yates Engineers
Installation consultant: MLM
Contractor: London Basement
Area: 280 sqm
Completion: 2016
