View gallery
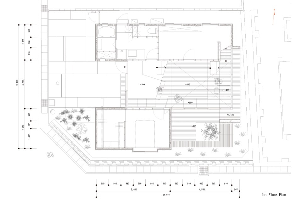
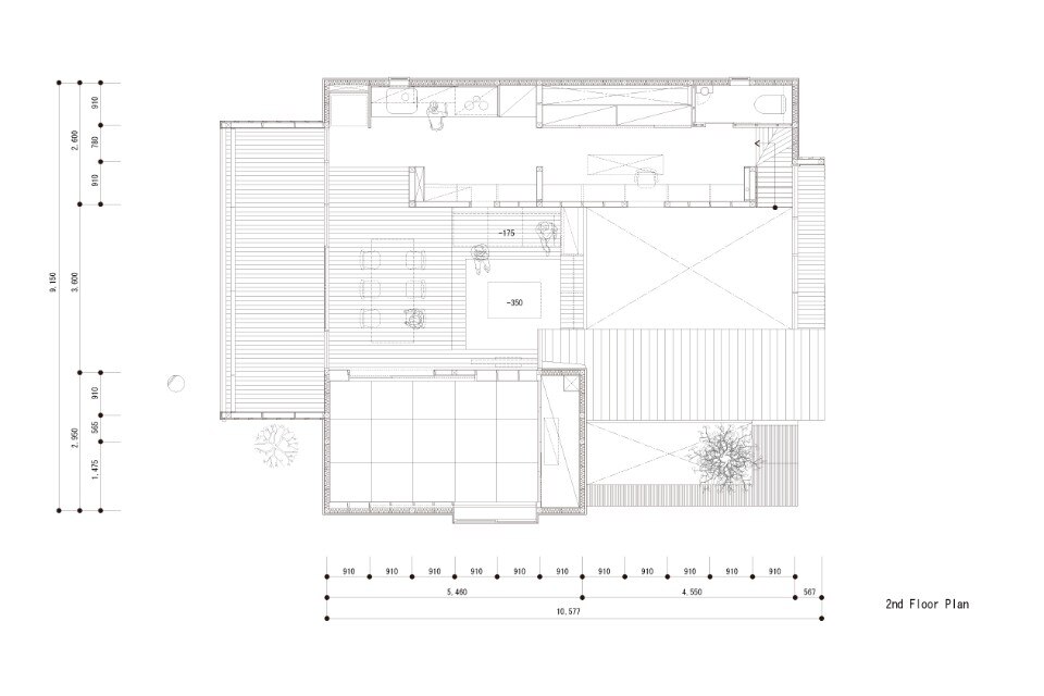
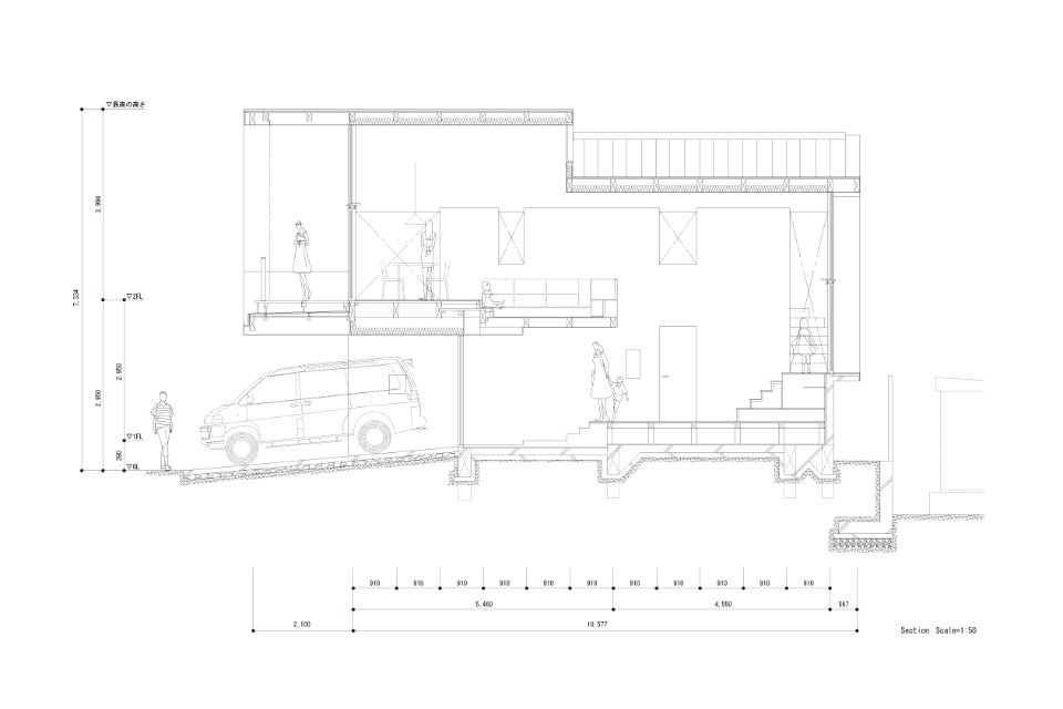
Everyone’s house is a continuous space both inside and outside. It has floors and steps at various levels with different meaning to each. They can also function as chairs, tables and storages, planning to be able to be used in everyday life by combining with the surrounding environment such as light, wind, sense of distance. A large space named hall, which is the essence of Everyone’s house, is a playground for children, becoming a study room, and a city living room.
Newtown House, Kyoto, Japan
Program: single family house
Architects: Kohei Yukawa and Hiroto Kawaguchi
Area: 99 sqm
Completion: 2016
