View gallery
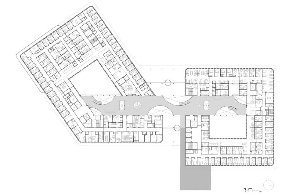
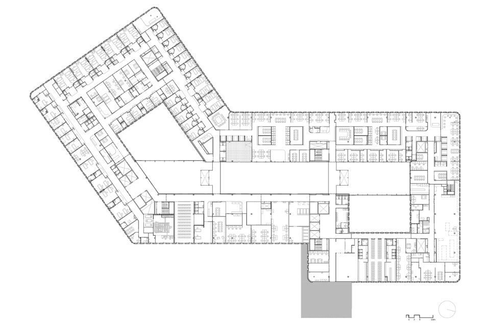
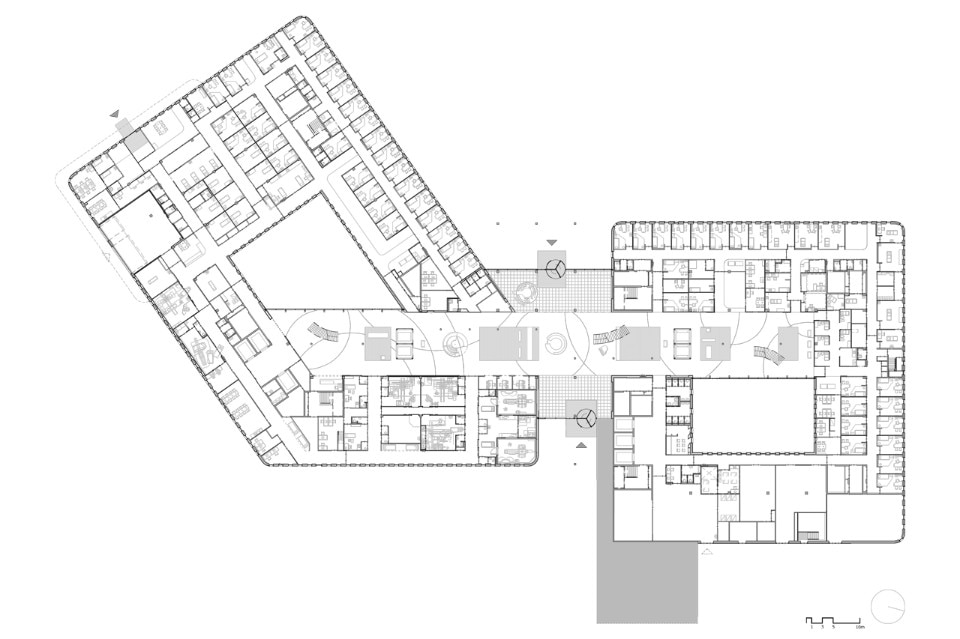
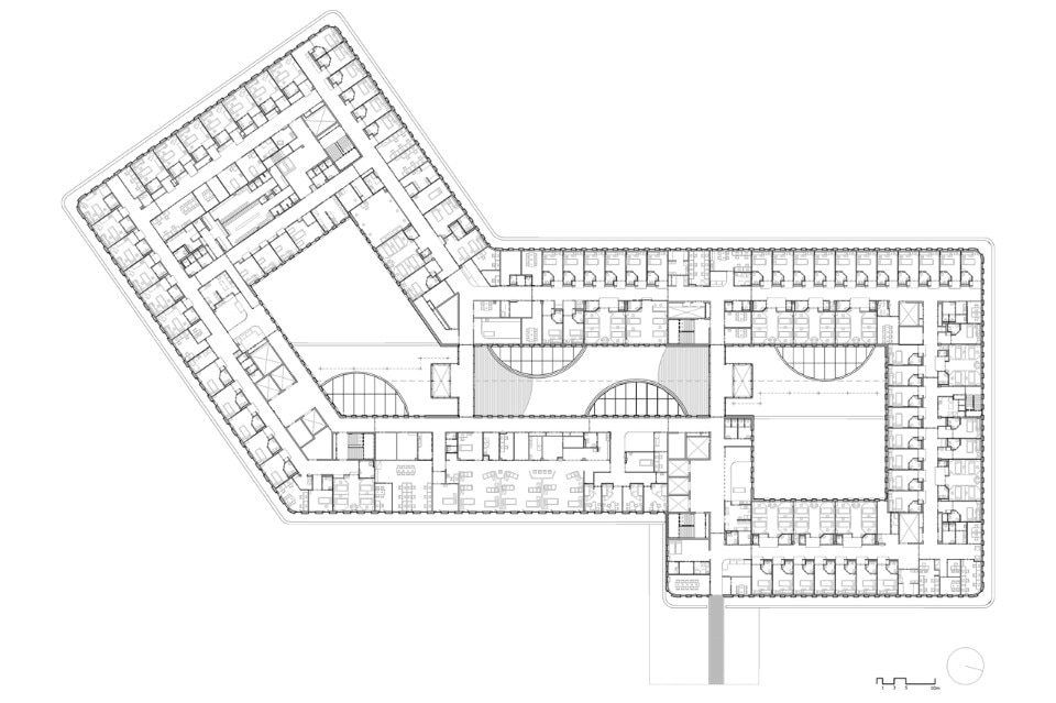
The smart lean design identifies five care processes: acute, elective, outpatient, clinic, and diagnostics. The clear stacking of two floors of outpatient clinics, two floors of clinical departments and a flexible facility layer between them, optimally serves these primary care processes. All departments are designed to prevent any form of waste. Whenever possible, the outpatient clinics and nursing departments are standardised, allowing for exchangeability and adaptability. The Zaans Medical Centre is therefore flexible and future-proof.
Zaans Medical Centre, Zandaam, the Netherlands
Architect: Mecanoo
Structural engineering: BAM Advies & Engineering, Bunnik
Mechanical engineering: Ingenieursbureau Linssen
Area: 38,500 sqm
Completion: 2016
