View gallery
The boxes are clad with a lightweight facade of perforated aluminium panels, forming a contrast to the base, where the existing brickwork is preserved and emphasizes the meeting between old and new, between past and future, and between natural science and engineering.
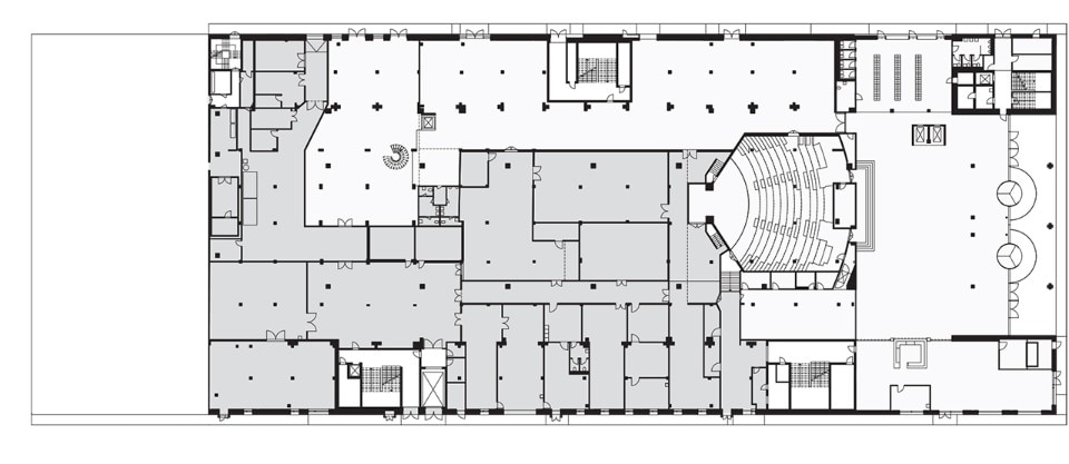
Experimentarium, Copenhagen, Denmark
Program: science centre
Architects: CEBRA
Engineering: Orbicon
Area: 26,850 sqm
Completion: 2017
