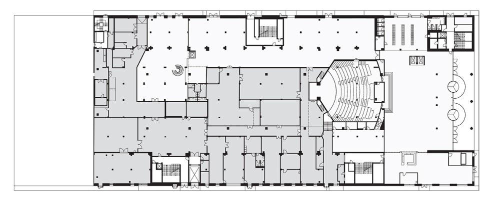
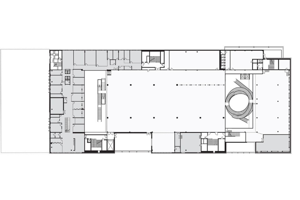
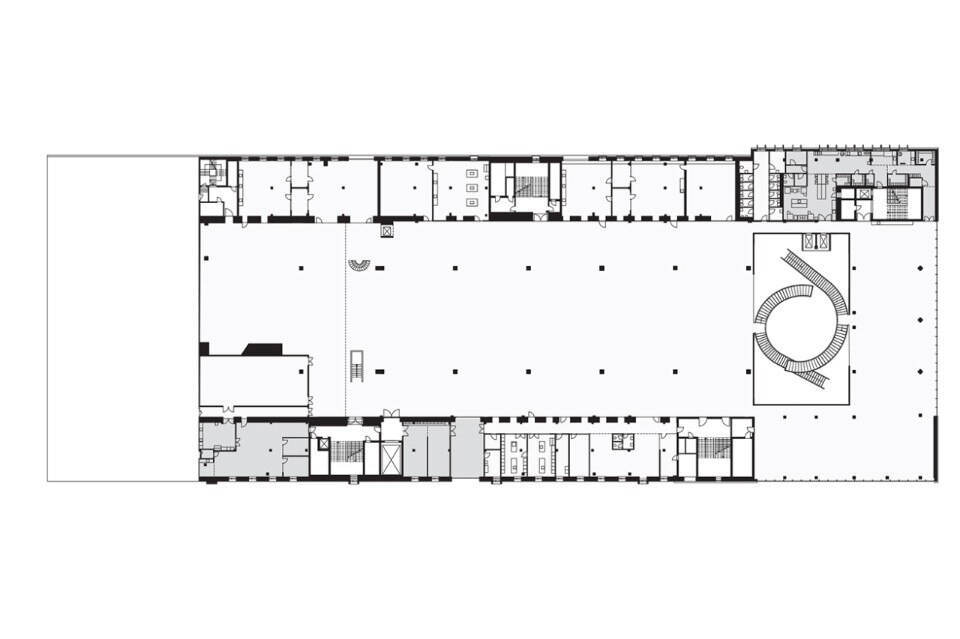
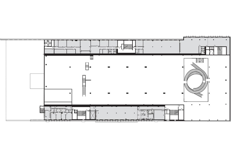
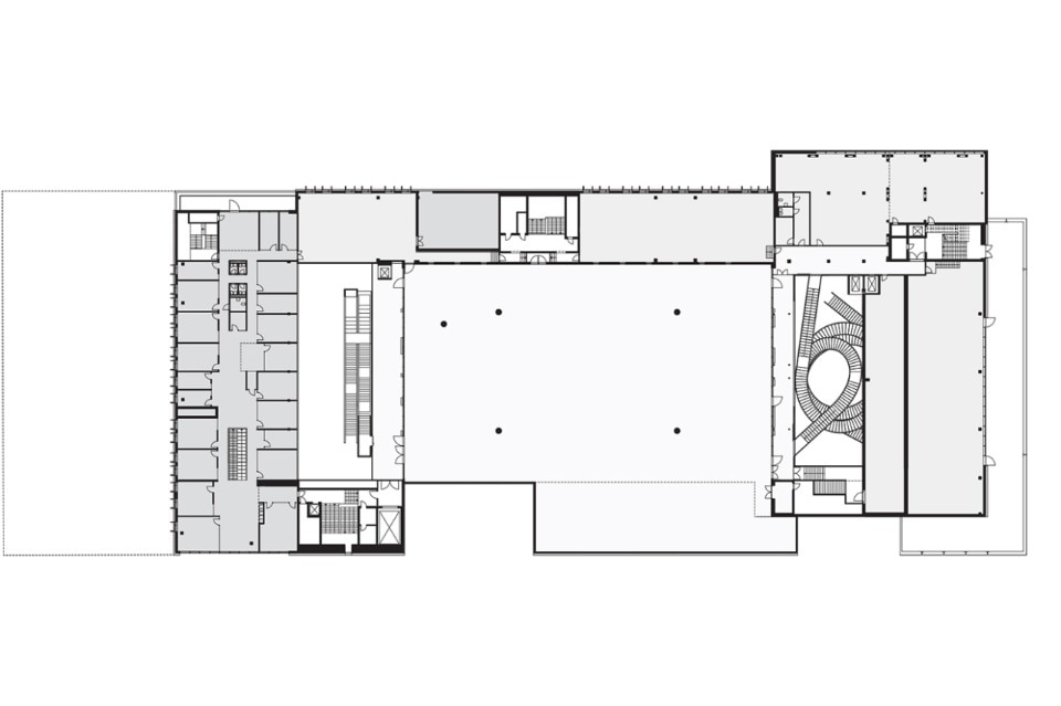
Galleria
I volumi sono rivestiti da una leggera pelle di pannelli di alluminio forato, che contrastano con la base, dov’è stata conservata la muratura esistente. È netta ed evidente la differenza tra vecchio e nuovo, tra passato e futuro, e tra le scienze naturali e ingegneria.
Experimentarium, Copenhagen, Danimarca
Tipologia: centro scientifico
Architetti: CEBRA
Ingegnere: Orbicon
Superficie: 26.850 mq
Completamento: 2017
