View gallery
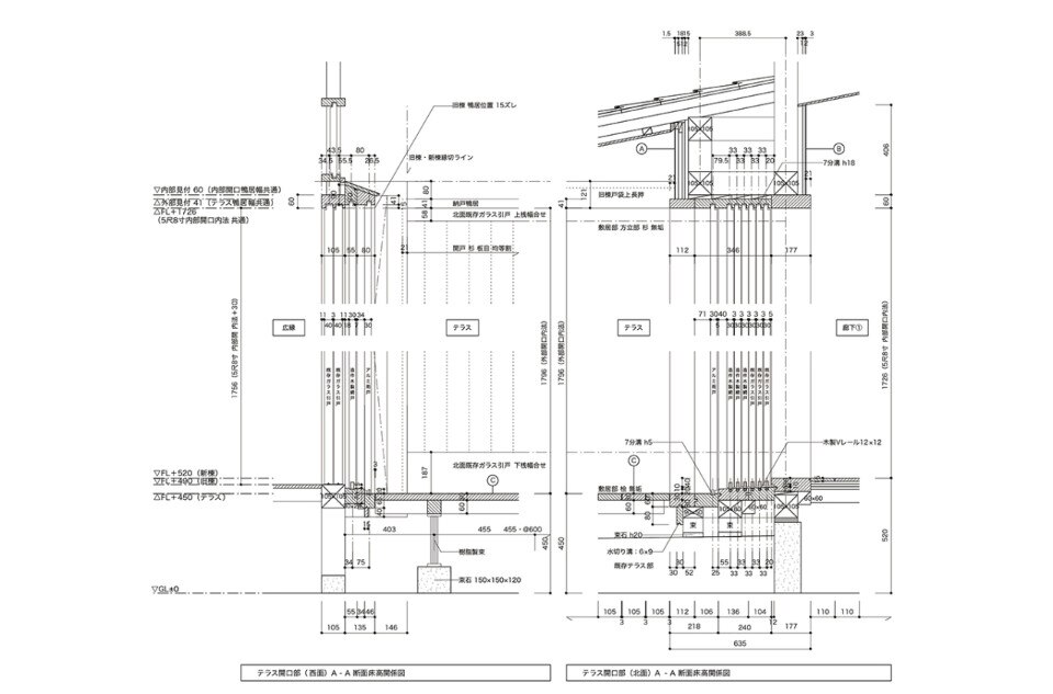
If the new section had been renovated to suit the modern living style, the inside dimensions would have become too different from the old section which was built in the traditional Japanese metrics. Naturally the life style on tatami differs from the contemporary style with chairs. If two set of metrics had been introduced in adjoining space, the old section would have been recognized as simply out-of-date and there would have been no harmony. Therefore the traditional Japanese metrics, “5 Shaku 7 Sun”, was applied to the new section. With the same inside measurement, old and new are connected in a harmonious way, and by keeping the proportion, the design of the new section was free from the restriction of the traditional Japanese style.
View gallery
Koumori-An, Wakayama, Japan
Program: house renovation
Architect: Atsumasa Tamura Design office
Area: 153 sqm
Completion: 2016
