View gallery
The project is based on the renovation, recovery and enlargement of a pre-existing school that needed a new architectural design to fit the new owner’s educational program. Children travel across courtyards, halls, classrooms and gardens, weaving the pre-existing spaces with the new ones. These spaces are constantly flooded with natural light, which allows them to transform throughout the day and become different places every hour. Such spaces are replacing old and dark hallways that are now sunbathed gardens that offer a variety of experiences.
View gallery
/Volumes/Data/ARQUITECTURA/04_PUBLICACIONES CONFERENCIAS CURSOS/PUBLICACIONES/2016/03_10_16_ARCHDAILY/PLANOS FINALES.dwg
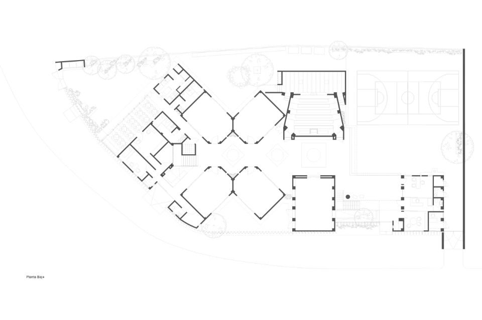
Miguel Montor, Walden Dos School, ground floor
/Volumes/Data/ARQUITECTURA/04_PUBLICACIONES CONFERENCIAS CURSOS/PUBLICACIONES/2016/03_10_16_ARCHDAILY/PLANOS FINALES.dwg
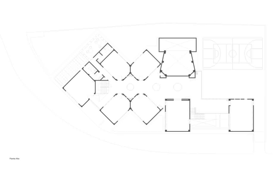
Miguel Montor, Walden Dos School, upper floor
/Volumes/Data/ARQUITECTURA/04_PUBLICACIONES CONFERENCIAS CURSOS/PUBLICACIONES/2016/03_10_16_ARCHDAILY/PLANOS FINALES.dwg
Miguel Montor, Walden Dos School, roof floor
/Volumes/Data/ARQUITECTURA/04_PUBLICACIONES CONFERENCIAS CURSOS/PUBLICACIONES/2016/03_10_16_ARCHDAILY/PLANOS/PLANOS FINALES.dwg
Miguel Montor, Walden Dos School, sections
/Volumes/Data/ARQUITECTURA/04_PUBLICACIONES CONFERENCIAS CURSOS/PUBLICACIONES/2016/03_10_16_ARCHDAILY/PLANOS/PLANOS FINALES.dwg
Miguel Montor, Walden Dos School, elevations
Walden Dos School, Huixquilucan, Mexico
Program: school
Architect: Miguel Montor
Design team: Mónica Mateos, Francisco Iván Bustillos
Collaborators: Regina De Hoyos, Paloma Envila, Juan Manuel Armendáriz, Aremi Miranda, Ana Laura Cardoso, Sebastián Bidault
Contractor: Lorenzo Farfán Villegas
Landscape: Taller de paisaje entorno – Tontatiuh Martínez, Hugo Sánchez, Renata Gallegos
Area: 1,335 sqm
Completion: 2016
