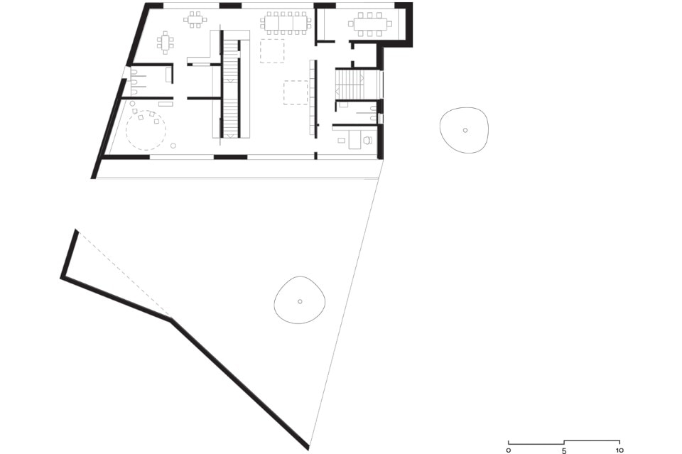
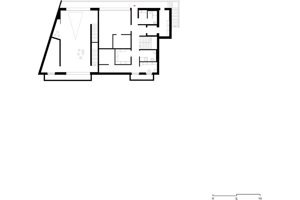
The unity of building and kindergarten yard is embedded in the traditional context and imparts to the kindergarten the architectural conditions for nest security, as well as for freedom. As a compact edifice this is located on the northern boundary of the property, endowing space for a sunny garden. The free space for children is optically and functionally separated from the road by the surrounding building structure.
View gallery
Kindergarten Niederolang, Valdaora di Sotto, Italy
Architects: feld72
Design team: Marino Fei, Carl Friedrich, David Kovařík, Therese Leick, Gerhard Mair, Edoardo Nobili
Engineering: Ingenieurteam Bergmeister
Area: 950 sqm
Completion: 2016
