View gallery
Vo Trong Nghia Architects and Takashi Niwa, The Lantern showroom, Dong Da, Hanoi, Vietnam, 2016. Photo Hiroyuki Oki
Vo Trong Nghia Architects and Takashi Niwa, The Lantern showroom, Dong Da, Hanoi, Vietnam, 2016. Photo left Hiroyuki Oki, right Trieu Chien
Vo Trong Nghia Architects and Takashi Niwa, The Lantern showroom, Dong Da, Hanoi, Vietnam, 2016. Photo Hiroyuki Oki
Vo Trong Nghia Architects and Takashi Niwa, The Lantern showroom, Dong Da, Hanoi, Vietnam, 2016. Photo Hiroyuki Oki
Vo Trong Nghia Architects and Takashi Niwa, The Lantern showroom, Dong Da, Hanoi, Vietnam, 2016. Photo Trieu Chien
The existing site proposed interesting design challenges, with the tree overshadowing the site, making it difficult for pedestrians to recognise the building from the main road. However, this scenario presented a unique opportunity to consider the existing tree as a main feature, creating a delicate backdrop to the ever-changing foliage.
View gallery
layout1
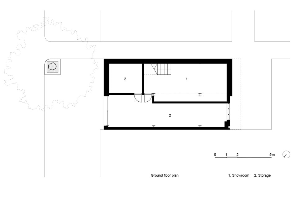
Vo Trong Nghia Architects and Takashi Niwa, The Lantern showroom, ground floor plan
2 1st floor plan
Vo Trong Nghia Architects and Takashi Niwa, The Lantern showroom, first floor plan
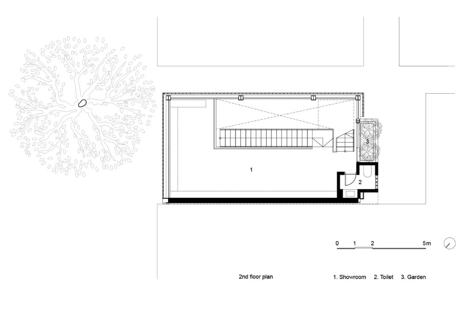
3 2nd floor plan
Vo Trong Nghia Architects and Takashi Niwa, The Lantern showroom, second floor plan
4 3rd floor plan
Vo Trong Nghia Architects and Takashi Niwa, The Lantern showroom, third floor plan
5 4th floor plan
Vo Trong Nghia Architects and Takashi Niwa, The Lantern showroom, fourth floor plan
6 Roof plan
Vo Trong Nghia Architects and Takashi Niwa, The Lantern showroom, roof floor plan
The Lantern, Dong Da district, Hanoi, Vietnam
Program: showroom
Architects: Vo Trong Nghia, Takashi Niwa
Design team: Nguyen Thi Thoa, Koji Yamamoto, Dao Sy Dung
Client: Nanoco
Main contractors: Dai Dung JSC, T.S.I. Vietnam Co. Ltd.
Site area: 72 sqm
Floor area: 383 sqm
Completion: 2016
