Archivio Digitale Domus PRO

Altaïr house

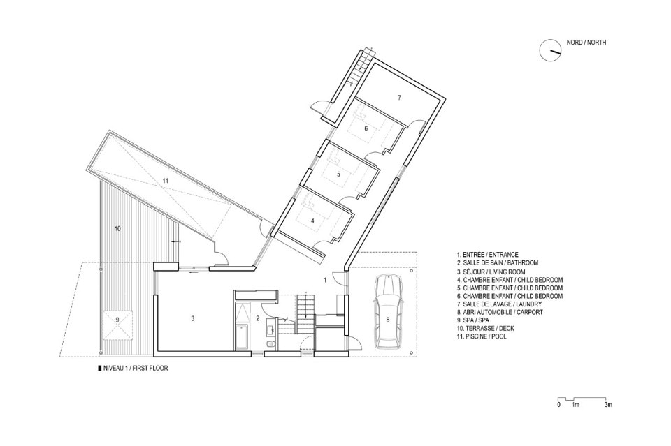
Located in Cap-à-l'Aigle, Canada, what makes Bourgeois / Lechasseur architects’ project stand out is its “V” shape and long facades that are suspended over nature.

Bourgeois / Lechasseur architects, Altaïr house, Cap-à-l’Aigle, 2016
This house is located in Cap-à-l’Aigle, in the region of Charlevoix. What makes the house stand out is its “V” shape and long facades that are suspended over nature. While discrete from the street and closed to the north, it unfolds toward the river.
Bourgeois / Lechasseur architects, Altaïr house, Cap-à-l’Aigle, 2016
Bourgeois / Lechasseur architects, Altaïr house, Cap-à-l’Aigle, 2016
Regarding the form, two longitudinal prisms are laid up one on top of the other. A voluntary misalignment allows contemplation of the scenery. The long glass facades provide different perspectives and framings of the river, the forest, and the city of Malbaie below.
Bourgeois / Lechasseur architects, Altaïr house, Cap-à-l’Aigle, 2016
Bourgeois / Lechasseur architects, Altaïr house, Cap-à-l’Aigle, 2016
The second floor is cantilevered and protrudes toward the river. The living areas succeed one another, and the completely open space provides a breathtaking view of the horizon. A vast terrace was built on the roof of the lower floor. The master suite is also located on this floor, slightly set back in the woods.
Bourgeois / Lechasseur architects, Altaïr house, Cap-à-l’Aigle, 2016
Bourgeois / Lechasseur architects, Altaïr house, Cap-à-l’Aigle, 2016
In terms of material, both storeys are covered with a grey wooden facing. The facades that are hidden or protected by the roof over-hangs are covered with Western cedar. This warm wood extends indoors to the ceiling, emphasising the continuation effect from the inside out.

Altaïr house, Cap-à-l’Aigle, Canada
Program: single-family house
Architects: Bourgeois / Lechasseur architects
General contractor: Construction des Grands-Jardins
Completion: 2016

Latest on Architecture

Latest on Domus

China Germany India Mexico, Central America and Caribbean Sri Lanka Korea icon-camera close icon-comments icon-down-sm icon-download icon-facebook icon-heart icon-heart icon-next-sm icon-next icon-pinterest icon-play icon-plus icon-prev-sm icon-prev Search icon-twitter icon-views icon-instagram