View gallery
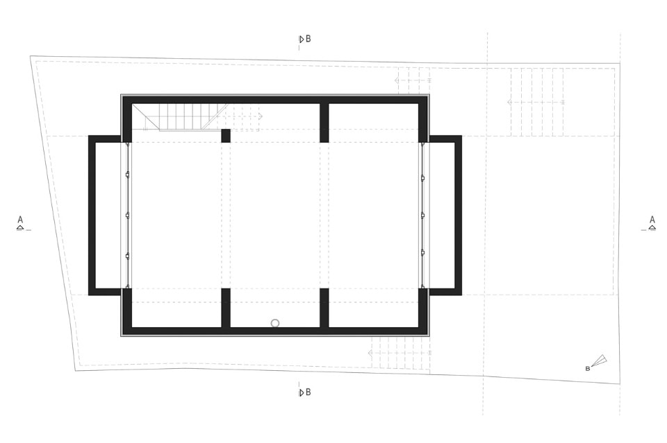
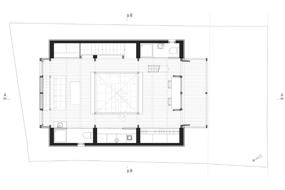
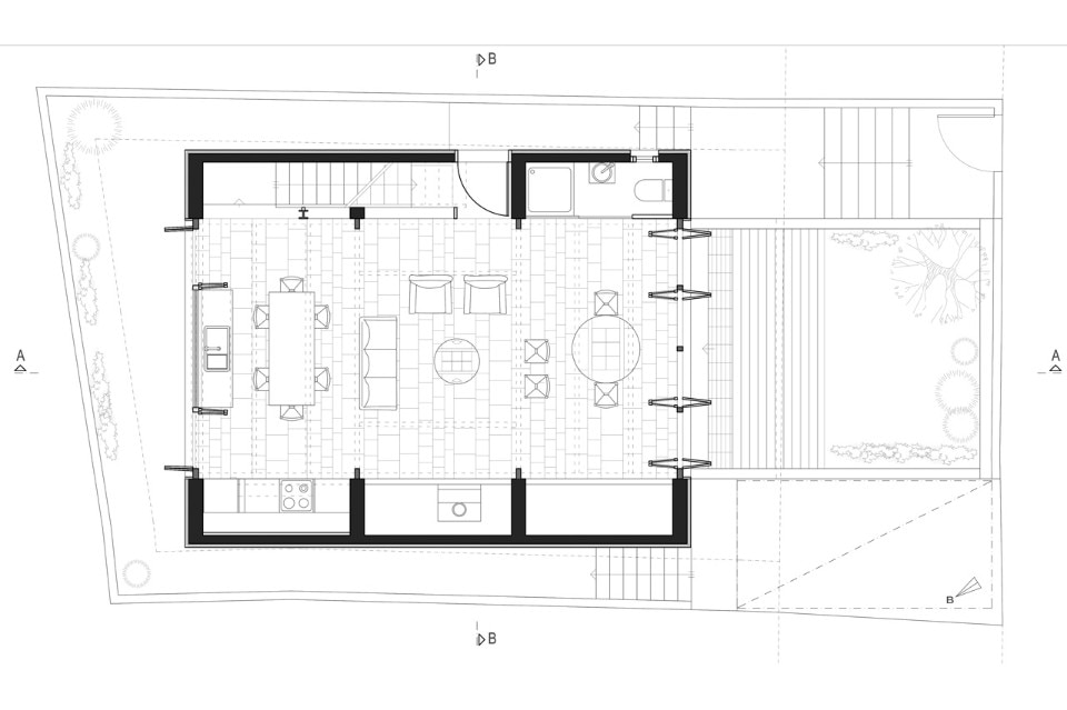
In terms of typology, the house could be considered as a basilica, with an interior atrium. The main space (4,30m wide), organized in a grid of four columns in a 2,60 m distance between them, hosts everyday’s life. In the two aisles, 1m wide, utilitarian performativity is being hosted (elevating, storing, bathing, cooking). The building construction materialize the house’s typology: the two aisles are build in concrete and the main space is formed as a wooden box that comes to fit to the concrete sides of the building.
The wooden box, is like the sound box of the simplest musical instrument, the monochord. In the way that geometrical construction demonstrates mathematical relationships between sounds in the musical instrument, it also demonstrates habitual relations between dwellers in the wooden house.
View gallery
C:\Users\efidim\Documents\work\kotiwnhs\ΑGRIA SXEDIA PDF\agria_gia epe3ergasia Model (1)
C:\Users\efidim\Documents\work\kotiwnhs\ΑGRIA SXEDIA PDF\agria_gia epe3ergasia Model (1)
C:\Users\efidim\Documents\work\kotiwnhs\ΑGRIA SXEDIA PDF\agria_gia epe3ergasia Model (1)
C:\Users\efidim\Documents\work\kotiwnhs\ΑGRIA SXEDIA PDF\agria_gia epe3ergasia Model (1)
Monochord, Agria Greece
Program: single family house
Architect: Zissis Kotionis
Collaborators: Konstantinos Sarantis, Vasia Liri Civil (engineer), Nikolaos Chatzinikolaou (statics), Dimitris Zimeris (electromechanological engineer), Aris Tsagkrasoulis (bioclimatic consultant)
Completion: 2016
