View gallery
\\DSMARCHI\agence\deplacement070216\Pouilly\EXE\03.CAD\pouiPROindice2_plan 03-Plan1-100 (1)
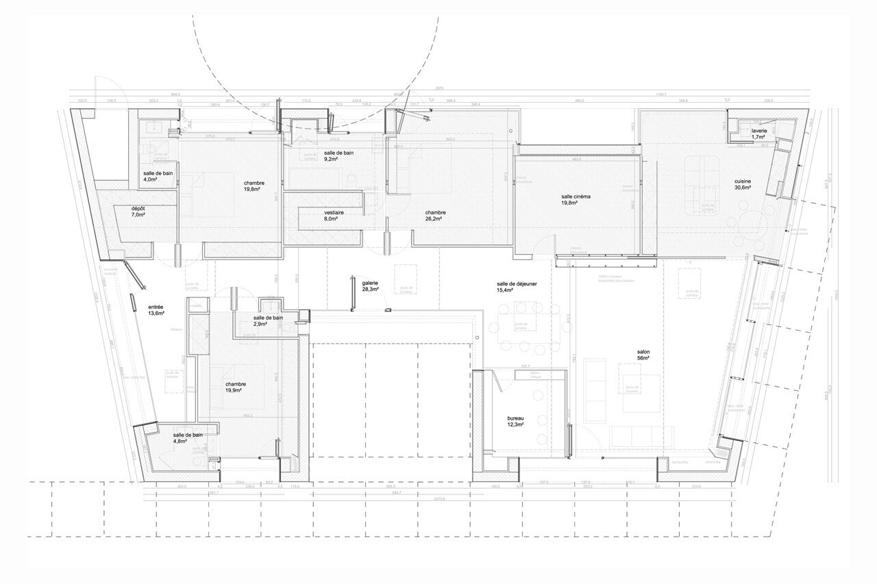
Marchi Architects, Chestnuts House, Auvergne, France. Ground floor plan
\\DSMARCHI\agence\deplacement070216\Pouilly\EXE\03.CAD\pouiPROindice2_plan 13-Cp-LLMM 100 (1)
Marchi Architects, Chestnuts House, Auvergne, France. Section
Chestnuts House, Auvergne, France
Program: single-family house
Architects: Marchi Architects
Project team: Marcello Orlandini, Marta Guedan, Kristin Lazarova
Consultants: Augusto Alves Sarl, François Gros Ingenierie, Jean-Luc Valety Sarl, Frederique Biosset, Palluet Freres
Area: 350 sqm
Completion: 2014
