Galleria
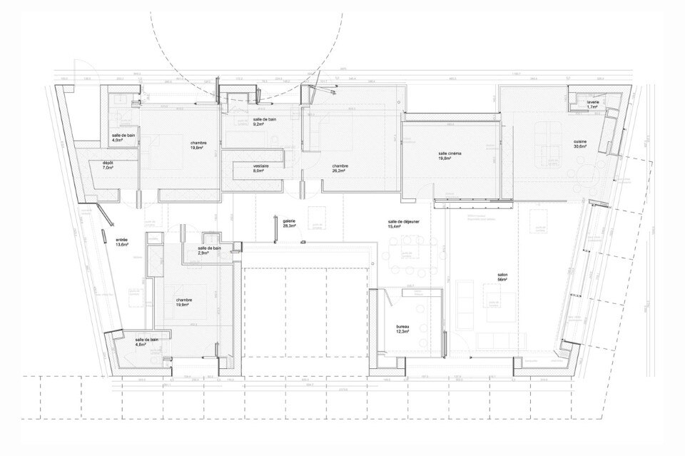
\\DSMARCHI\agence\deplacement070216\Pouilly\EXE\03.CAD\pouiPROindice2_plan 03-Plan1-100 (1)
Marchi Architects, Maison des Marronniers, Auvergne, Francia. Pianta del piano terra
\\DSMARCHI\agence\deplacement070216\Pouilly\EXE\03.CAD\pouiPROindice2_plan 13-Cp-LLMM 100 (1)
Marchi Architects, Maison des Marronniers, Auvergne, Francia. Sezione
Maison des Marronniers, Auvergne, Francia
Tipologia: casa unifamiliare
Architetti: Marchi Architects
Team di progetto: Marcello Orlandini, Marta Guedan, Kristin Lazarova
Consulenti: Augusto Alves Sarl, François Gros Ingenierie, Jean-Luc Valety Sarl, Frederique Biosset, Palluet Freres
Area: 350 mq
Completamento: 2014
