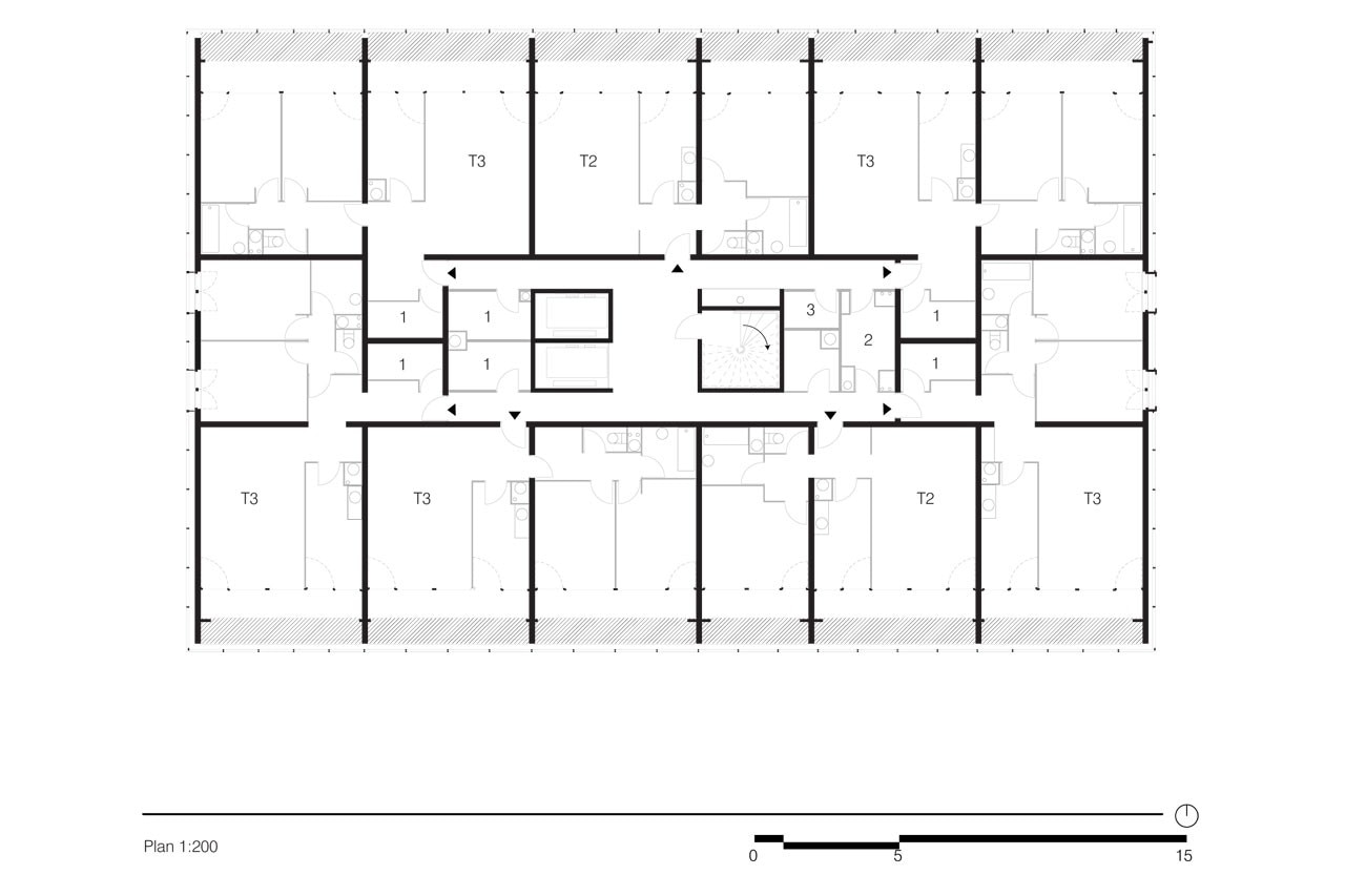
Each residential group is reconfigured into a distinctive entity and follows the logic of the plot area. The renewal of the façades, which is initially designed to thermally insulate the building, opens up an opportunity for a dualistic approach to the rehabilitation. On one side, the rehabilitation has presented an opportunity to generate more space through creating additional rooms, loggias and balconies. On the other, it has defined a new architecture, visibly distinguishing each city block from one another. The three towers of St. Hilaire define with their new envelope a bright plaza and a playground area.
Leroy, situated on a wooded hill, creates a bucolic atmosphere. Boétie, positioned around a large central lawn, is reestablished by new landscapes and equipped with linear seatings, offers open green spaces for families. Villon, situated at a crossroad in the heart of a forested area sheltered from wind, offers sunshine in the afternoon and a space for relaxation, hidden from major traffic at the esplanade Saint Hilaire and peripheral highways.
The parking areas are entirely redesigned, rationalized and concentrated around the site’s edges. As a result, the absence of vehicles will create a genuine urban park area at the foot of the buildings. Within this park, wooden and concrete elements will be placed to serve as transitional spaces, terraces, retaining walls, abrupt shifts of the levels and playground areas.
Each space creates a network of wooden and concrete landmarks, pedestrian pathways and meeting places between the housing groups. These defined elements will contrast to areas of lush vegetation. The wooden and concrete structures are characterized by their spatial qualities and will thus function similar to classical elements of the romantic garden such as follies, bandstands, pavilions, belvederes, terraces and fountains, and will complement the existing landscape to create an urban park. Thus, the spaces between each residential unit and crossroads will be marked by green zones.
Urban Renovation Lormont, France
Program: collective and social housing, landscape and parking
Architects: LAN Architecture
HEQ consultant: Agence Franck
Landscape Architects: BASE
All-trades engineer: Beterm Ingénierie
Client: Domofrance
Budget: 16,8 M€ excl. VAT
Completion: 2015
