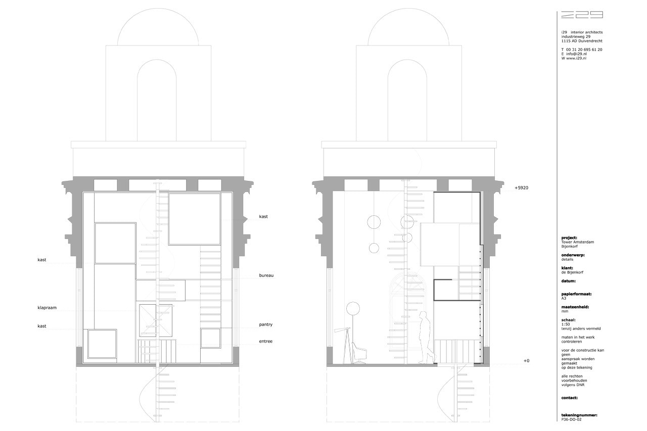
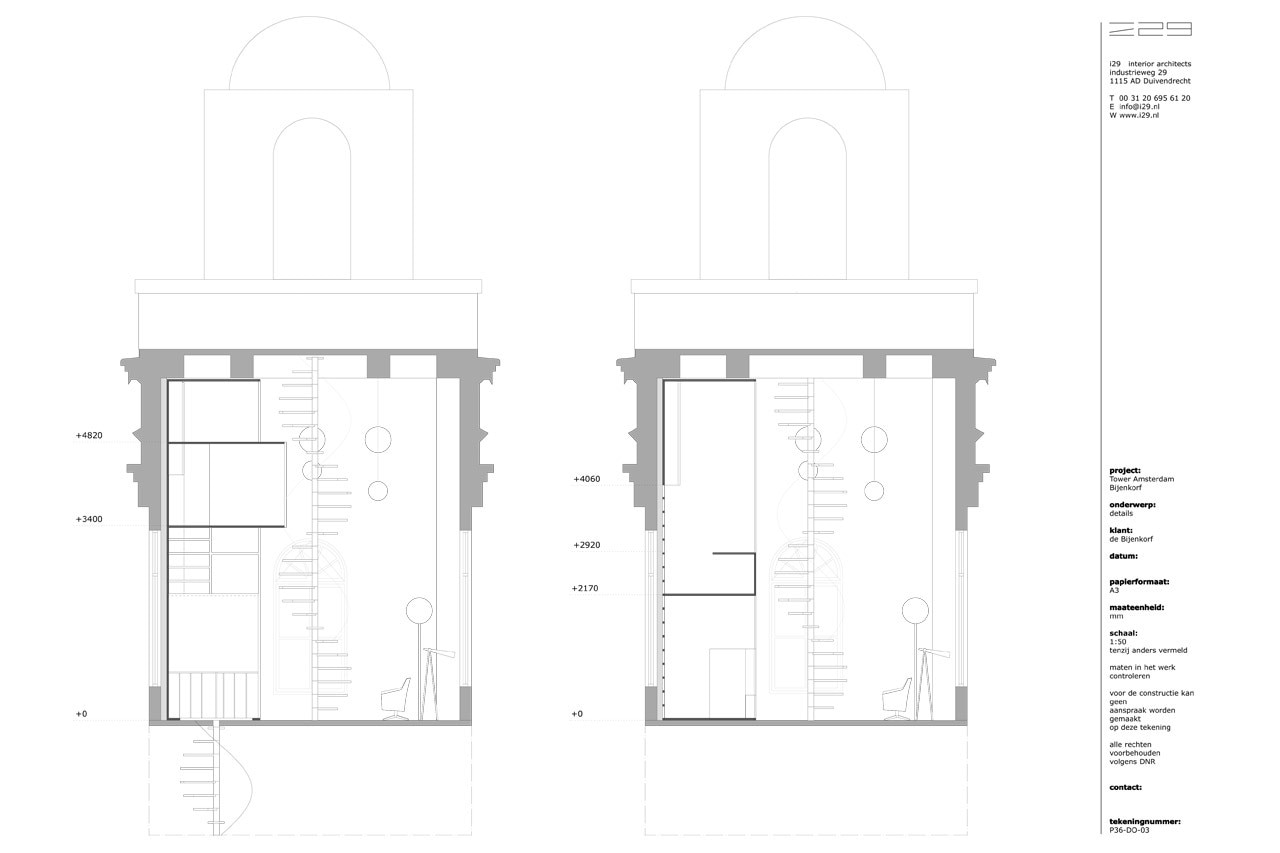
The interior of the tower is designed by i29 interior architects. Room On The Roof wants to offer the artist a unique experience. This was the starting point for i29 to realize an installation that brings together two worlds in one space; playing with scale and perception as in the universe of Alice in Wonderland. On one side a vertical installation of wooden volumes from floor to ceiling is placed, the other side is a full white space.
The wooden installation includes a pantry, storage, desk and daybed. The functions have been stacked on top of each other as a kind of ‘living cabinet’ in order to experience the tower on different levels. Via small ladders you can climb up in the cabinet. Each level gives a new perspective and view to the outside world.
View gallery
P36 | 140915-plattegrond schoon v2015
P36 | 140915-plattegrond schoon v2015
Room On The Roof, Tower on de Bijenkorf, Amsterdam
Program: artist residency
Architects: i29 interior architects
Client: De Bijenkorf
Builder: Fiction Factory
Completion: 2015
