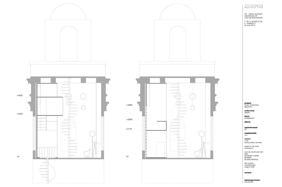
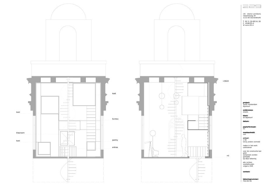
L’interno della torre è stato progettato da i29 interior architects: partendo dall’idea di offrire all’artista un’esperienza unica i29 ha realizzato un’installazione che mette insieme due mondi in un’unico spazio, giocando con la scala e la percezione come nel mondo di Alice nel paese delle meraviglie. Da un lato un impianto verticale di volumi legno che si sovrappongono dal pavimento al soffitto, dall’altro lato uno spazio completamento bianco.
La composizione in legno include una dispensa, gli armadi, la scrivania e un divano letto. Le funzioni sono state impilate una sopra l’altra come una sorta di “scrigno”, in modo da poter sperimentare la torre su diversi livelli salendo un sistema di scale. Ogni livello offre una nuova vista prospettica e sul mondo esterno.
Galleria
P36 | 140915-plattegrond schoon v2015
P36 | 140915-plattegrond schoon v2015
Room On The Roof, Tower on de Bijenkorf, Amsterdam
Tipologia: residenza d’artista
Architetti: i29 interior architects
Committente: De Bijenkorf
Costruttore: Fiction Factory
Completamento: 2015
