View gallery
N:\01-ADP-Projets\Projets-DOSSIERS\130-Michel Lecomte\00-publication\plaquette 2014\PLANS\MLC-CH-plans SIMPLIFIES PLAN RDC A4 (
Atelier Du Pont, Le Marais, 25 rue Michel le Comte, Paris 3rd, France (Marais area). ground floor plan
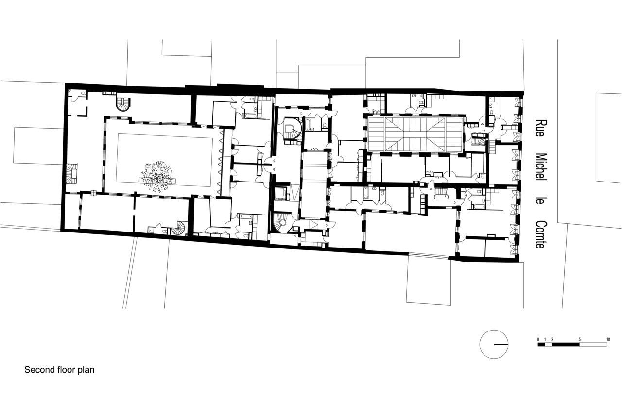
N:\01-ADP-Projets\Projets-DOSSIERS\130-Michel Lecomte\00-publication\plaquette 2014\PLANS\MLC-CH-plans SIMPLIFIES PLAN R+2 A4 (
Atelier Du Pont, Le Marais, 25 rue Michel le Comte, Paris 3rd, France (Marais area). Second floor plan
Le Marais, 25 rue Michel le Comte, Paris 3rd, France (Marais area)
Program: social housing units and offices
Architects: Atelier du Pont (Anne-Cécile Comar, Philippe Croisier, Stéphane Pertusier)
Team: Alice Berthelon, Aline Defert, Ariane Rouveyrol
Engineering: Parica
General contractor: SRC
Surface: 4,500 sqm
Completion: phase 1 March 2014; phase 2 July 2015
