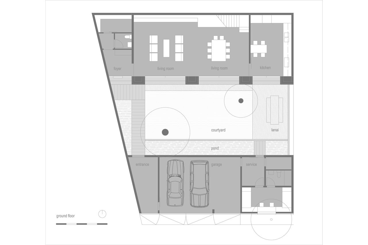
The program is a 465 sqm family house on a 360 sqm lot. The entrance foyer, garage and service area face the access road while dining, living room and kitchen overlook the private courtyard.
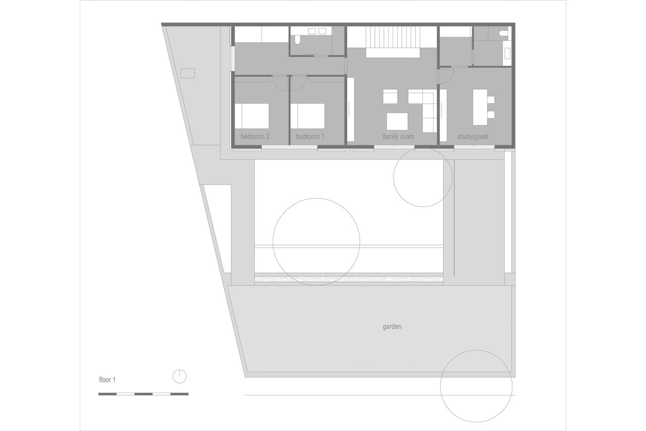
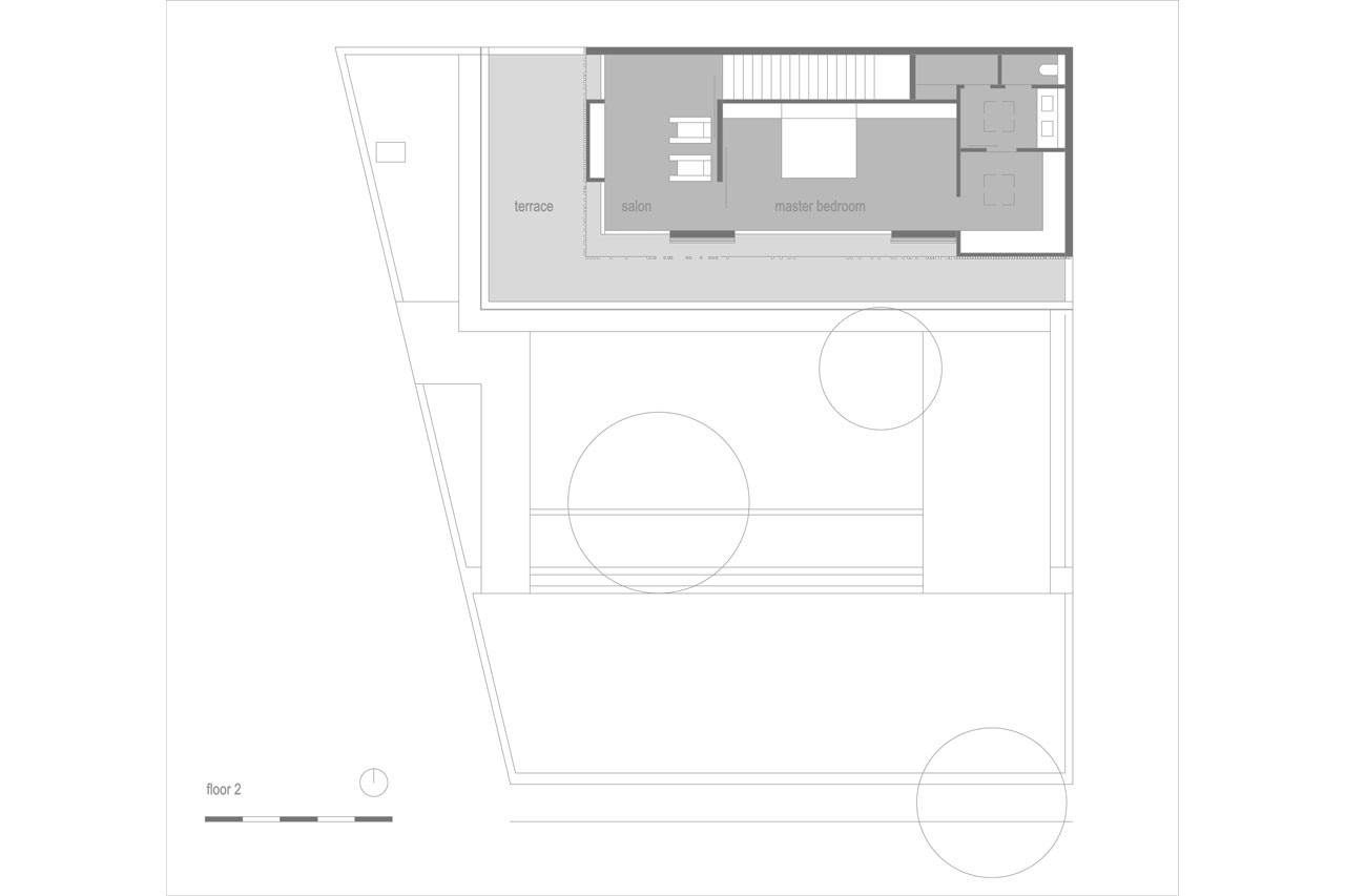
The first floor hosts a family room and a private quarter with two bedrooms along with a guest-office room with access to a roof garden. The master bedroom occupies the second floor with its own salon, changing room and bathroom.
View gallery
Model
Atelier Sacha Cotture, Courtyard House, Paranaque City, Philippines. Gorund floor plan
Model
Atelier Sacha Cotture, Courtyard House, Paranaque City, Philippines. First floor plan
Model
Atelier Sacha Cotture, Courtyard House, Paranaque City, Philippines. Third floor plan
Courtyard House, Paranaque City, Philippines
Architects: Atelier Sacha Cotture
Styling and furnishing: Milo Naval
Area: 465 sqm
