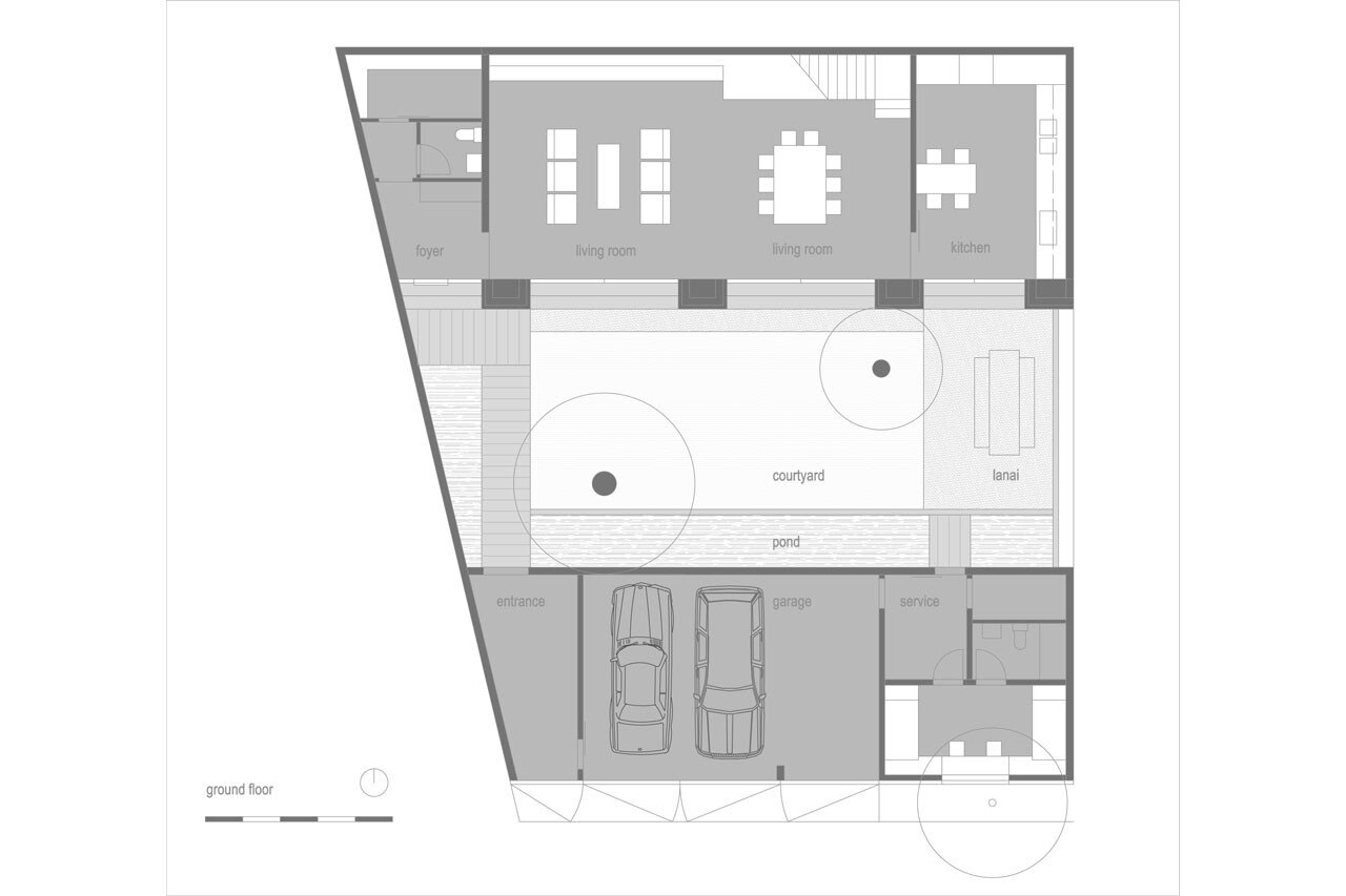
La casa occupa un’area di 465 mq all’interno di un lotto di 360 mq. L’ingresso, il garage e gli spazi di servizio affacciano sulla strada di accesso, mentre la zona pranzo, il soggiorno e la cucina sono rivolti verso il cortile privato interno.
Il primo piano ospita una zona giorno e un piccolo appartamento con due camere e un ambiente di lavoro con accesso al giardino pensile. La camera da letto padronale occupa il secondo piano e comunica con un soggiorno di pertinenza, guardaroba e bagno.
Galleria
Model
Atelier Sacha Cotture, Courtyard House, Paranaque, Filippine. Pianta del piano terra
Model
Atelier Sacha Cotture, Courtyard House, Paranaque, Filippine. Pianta del primo piano
Model
Atelier Sacha Cotture, Courtyard House, Paranaque, Filippine. Pianta del terzo piano
Courtyard House, Paranaque, Filippine
Architetti: Atelier Sacha Cotture
Arredamento: Milo Naval
Area: 465 mq
