View gallery
C.F. Møller Architects, International School Ikast-Brande, Ikast, Denmark. Photo Martin Schubert
C.F. Møller Architects, International School Ikast-Brande, Ikast, Denmark. Photo Martin Schubert
C.F. Møller Architects, International School Ikast-Brande, Ikast, Denmark. On the left: photo Julian Weyer. On the right: photo Martin Schubert
C.F. Møller Architects, International School Ikast-Brande, Ikast, Denmark. Photo Martin Schubert
C.F. Møller Architects, International School Ikast-Brande, Ikast, Denmark. Photo Martin Schubert
C.F. Møller Architects, International School Ikast-Brande, Ikast, Denmark. Photo Martin Schubert
C.F. Møller Architects, International School Ikast-Brande, Ikast, Denmark. Photo Julian Weyer
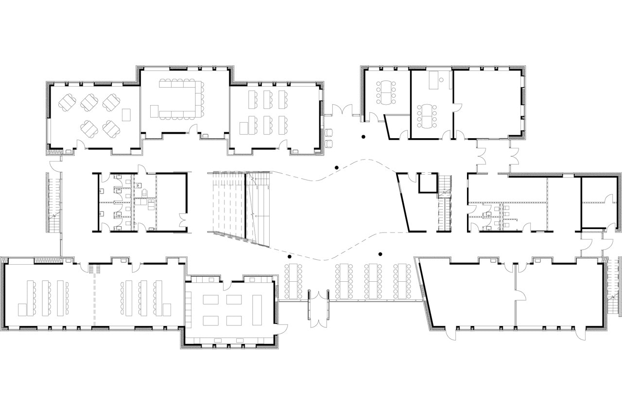
C.F. Møller Architects, International School Ikast-Brande, Ikast, Denmark, ground floor plan
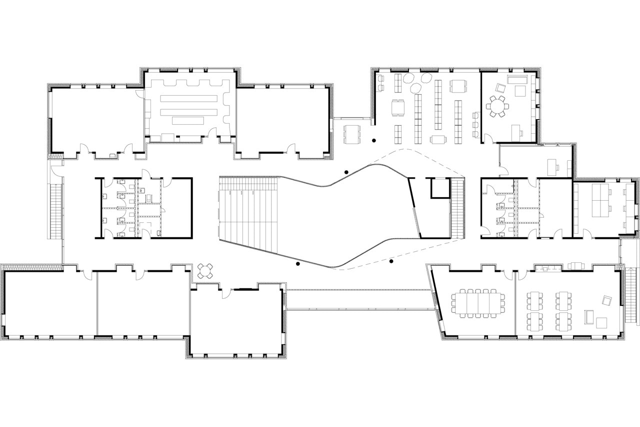
C.F. Møller Architects, International School Ikast-Brande, Ikast, Denmark, first floor plan
forslagsmappe_A3.pdf
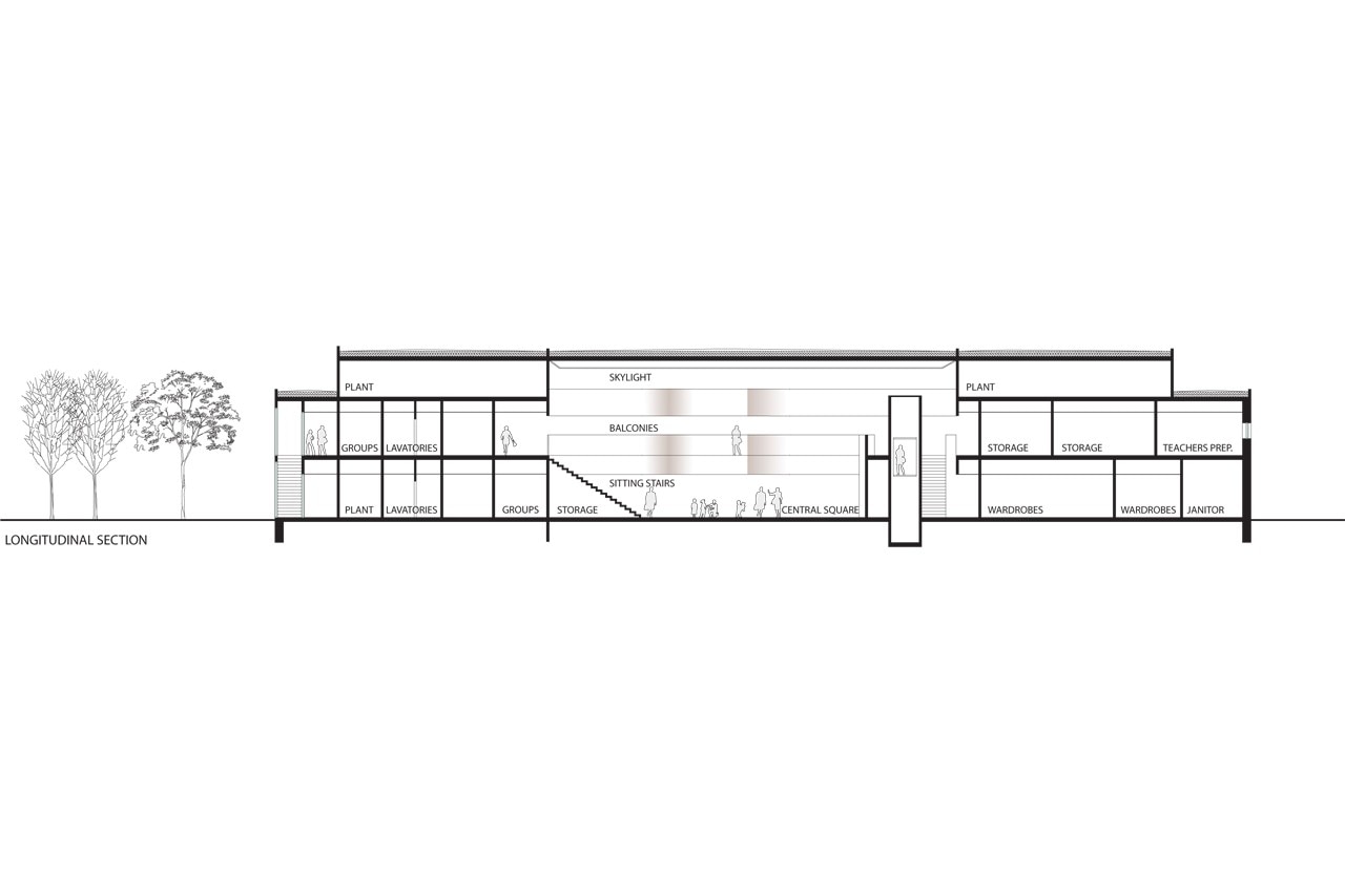
C.F. Møller Architects, International School Ikast-Brande, Ikast, Denmark, cross sections
International School Ikast-Brande, Ikast, Denmark
Program: school complex (school, after-school and kindergarten)
Architect: C.F. Møller Architects
Engineer: Midtconsult
Client: ISIB Ejendomsselskab A/S
Area: 2600 sqm
Completion: 2013
