Galleria
C.F. Møller Architects, International School Ikast-Brande, Ikast, Danimarca. Photo Martin Schubert
C.F. Møller Architects, International School Ikast-Brande, Ikast, Danimarca. Photo Martin Schubert
C.F. Møller Architects, International School Ikast-Brande, Ikast, Danimarca. A sinistra: photo Julian Weyer. A destra: photo Martin Schubert
C.F. Møller Architects, International School Ikast-Brande, Ikast, Danimarca. Photo Martin Schubert
C.F. Møller Architects, International School Ikast-Brande, Ikast, Danimarca. Photo Martin Schubert
C.F. Møller Architects, International School Ikast-Brande, Ikast, Danimarca. Photo Martin Schubert
C.F. Møller Architects, International School Ikast-Brande, Ikast, Danimarca. Photo Julian Weyer
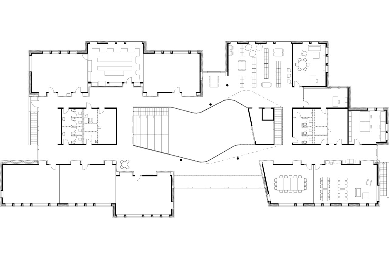
C.F. Møller Architects, International School Ikast-Brande, Ikast, Danimarca, pianta del piano terra
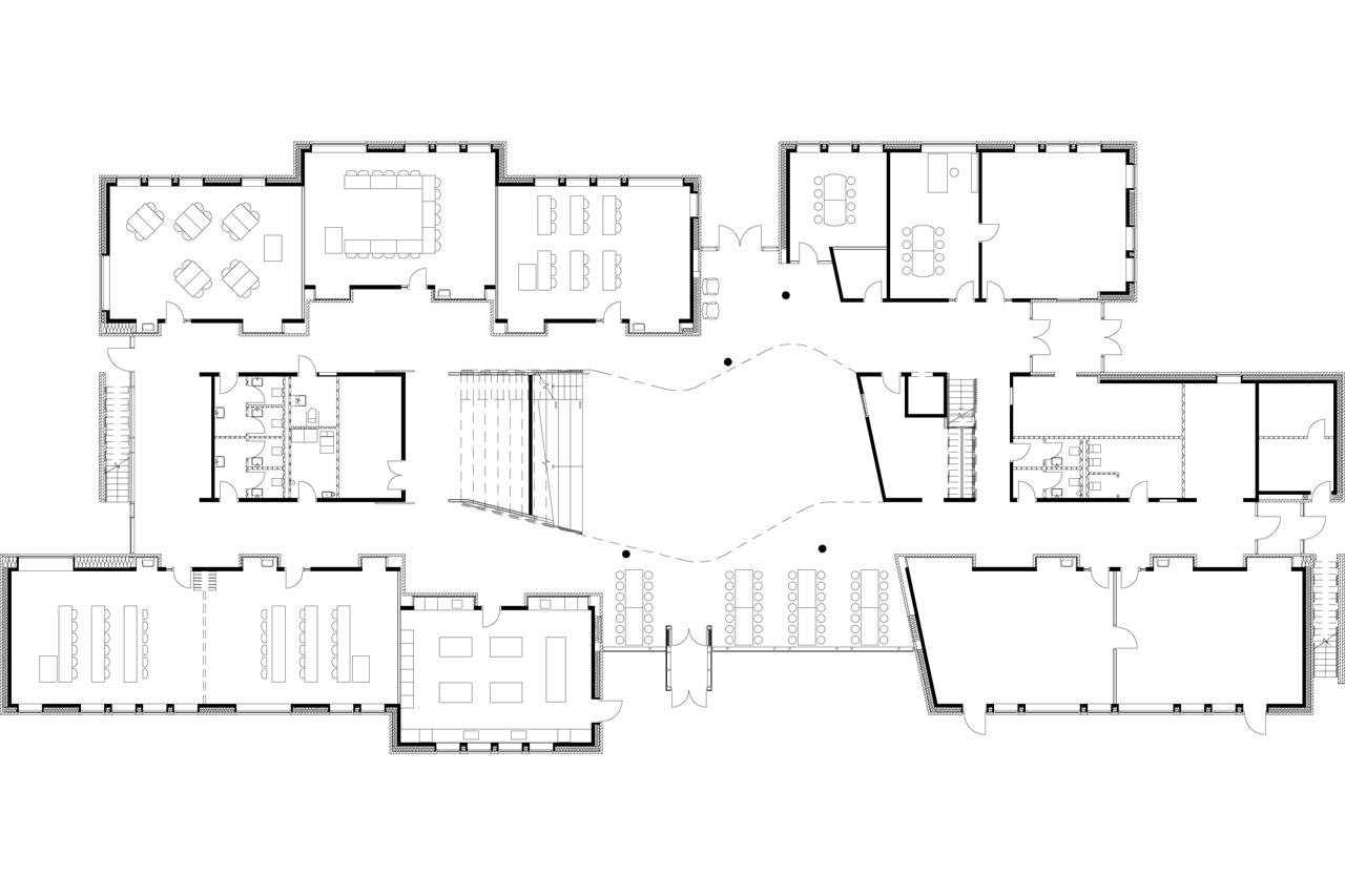
C.F. Møller Architects, International School Ikast-Brande, Ikast, Danimarca, pianta del primo piano
forslagsmappe_A3.pdf
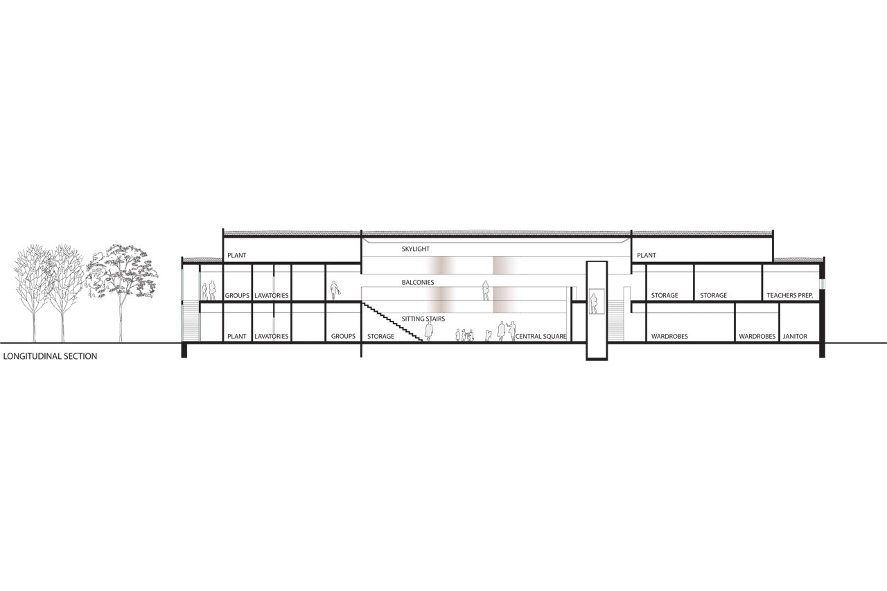
C.F. Møller Architects, International School Ikast-Brande, Ikast, Danimarca, sezioni trasversali
International School Ikast-Brande, Ikast, Danimarca
Tipologia: complesso scolastico (scuola, doposcuola e asilo)
Architetti: C.F. Møller Architects
Ingegneria: Midtconsult
Committente: ISIB Ejendomsselskab A/S
Area: 2600 mq
Completiamento: 2013
