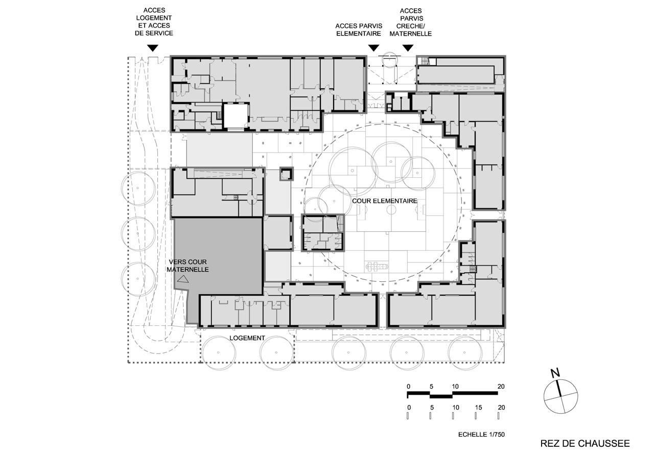
The school complex, located at the heart of the Ginko sustainable neighbourhood in Bordeaux, is aligned with the surrounding facades and is in keeping with the size of other buildings in the area (three storeys). The school group is surrounded by green areas which provide continuity with the ZAC Ginko’s landscaped spaces.
View gallery
planbordeauxlac
Joly&Loiret agence d'architecture, Les trois mondes, Ginko, Bordeaux, France, siteplan
\\192.168.1.250\communication\EXPO_CONF_PUBLICATIONS_EVENEMENTS\DOSSIER_PRESSE_OUT\JL_COM_20130129_BOR1\Nouveau dossier\PLAN_CO
Joly&Loiret agence d'architecture, Les trois mondes, Ginko, Bordeaux, France, plan
\\192.168.1.250\communication\EXPO_CONF_PUBLICATIONS_EVENEMENTS\DOSSIER_PRESSE_OUT\JL_COM_20130129_BOR1\Nouveau dossier\PLAN_CO
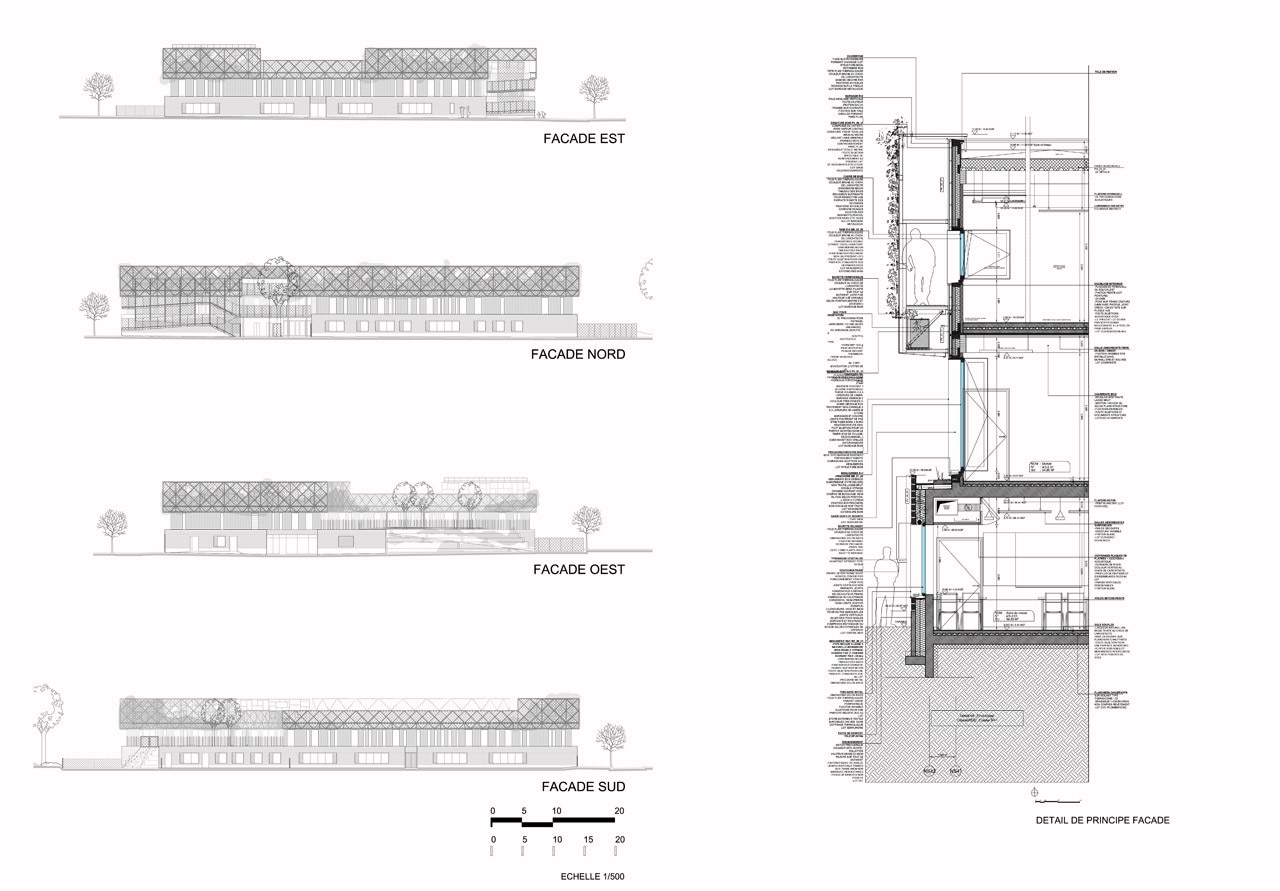
Joly&Loiret agence d'architecture, Les trois mondes, Ginko, Bordeaux, France, section
Les trois mondes, Ginko, Bordeaux
Program: school complex
Architects: Joly&Loiret agence d'architecture
Area: 5,020 sqm
Completion: 2013
