Il complesso, che sorge nel cuore del quartiere sostenibile Ginko a Bordeaux, è allineato con le facciate degli edifici circostanti, con i quali condivide anche la scala (tre piani). Il centro scolastico è circondato da spazi verdi che creano continuità con il paesaggio di Zac de la Berge du Lac / Ginko.
Galleria
planbordeauxlac
Joly&Loiret agence d'architecture, Les trois mondes, Ginko, Bordeaux, Francia, inquadramento
\\192.168.1.250\communication\EXPO_CONF_PUBLICATIONS_EVENEMENTS\DOSSIER_PRESSE_OUT\JL_COM_20130129_BOR1\Nouveau dossier\PLAN_CO
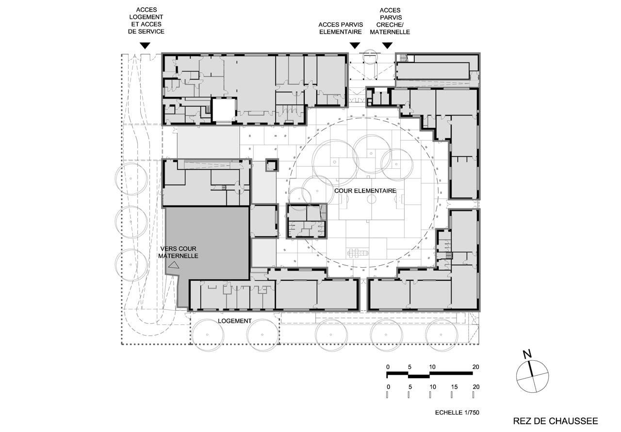
Joly&Loiret agence d'architecture, Les trois mondes, Ginko, Bordeaux, Francia, pianta
\\192.168.1.250\communication\EXPO_CONF_PUBLICATIONS_EVENEMENTS\DOSSIER_PRESSE_OUT\JL_COM_20130129_BOR1\Nouveau dossier\PLAN_CO
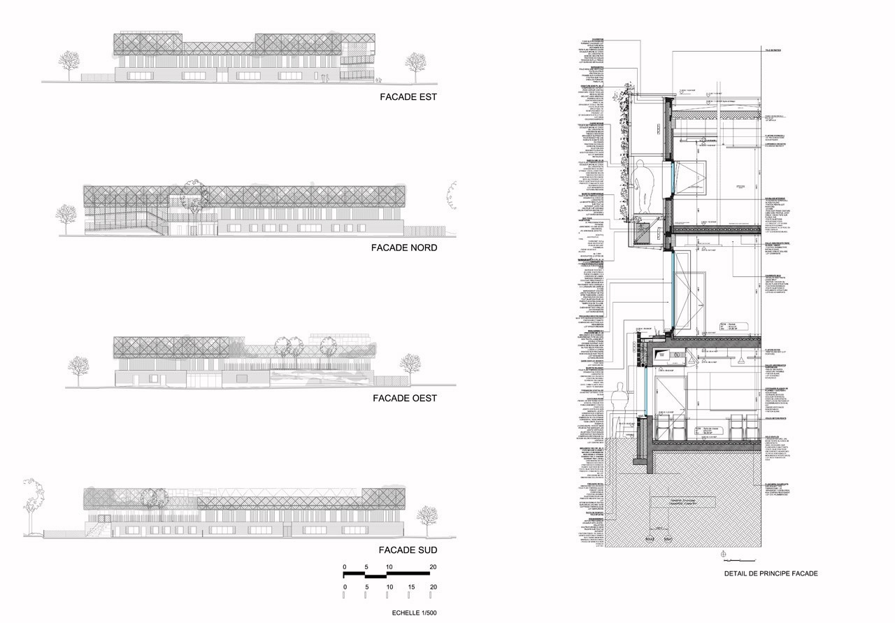
Joly&Loiret agence d'architecture, Les trois mondes, Ginko, Bordeaux, Francia, sezione
Les trois mondes, Ginko, Bordeaux, Francia
Programma: complesso scolastico
Architetti: Joly&Loiret agence d’architecture
Area: 5020 mq
Completamento: 2013
