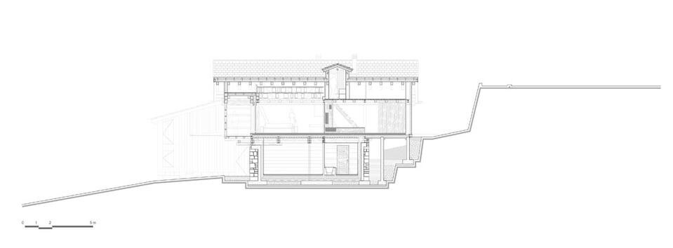
The starting point was to gain knowledge of the history of this particular building by means of meticulous observation of all its parts in order to uncover its initial charm. The architects were able to identify and eliminate the elements that had been added over the years and concealed the barn's true character. The job required exceptional patience: after mapping out the entire building, the structural wooden framework was dismantled, cleaned and restored before being put back together again.
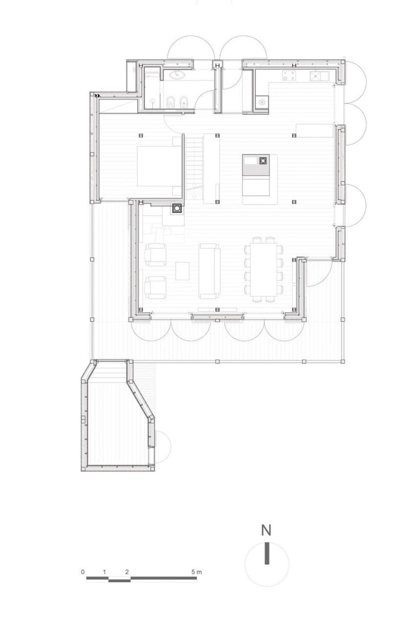
EXiT did leave its own mark of creativity, but proceeded with discretion and intelligence. One example is the black lacquered steel structure that combines superbly with the old larch and fir wood. Another example is the parapet on the first floor, constructed from two rows of irregular frames of black steel.
Renovation of a Tabià in Selva di Cadore, Belluno
Architects: EXiT Architetti Associati
(Francesco Loschi, Giuseppe Pagano & Paolo Panetto)
Construction management: Francesco Loschi
Structural engineering: Alberto Soligo
Plant enineering: Mauro Benozzi
Built area: 220 square metres
Design and construction: January 2008 – July 2010
