It reveals an urban place which users, residents, visitors or passers appropriate; and meets the requirements of coherence and simplicity, between functional and aesthetic sense.
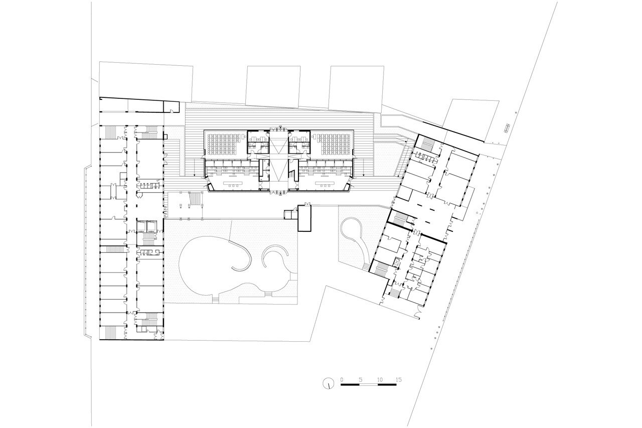
The urban court, addressed in the 16th district and belonging to the University Paris Descartes, was seen as a crowded space, resulting from an accumulation of buildings and shrines on top of a parking floor occupying the whole court. The challenge of its transformation lay in the ability to turn it into a functional and desirable space.
The compact and minimalist definition of the new building, the simplicity of its design, the level of finish and the choice of materials, aim to strengthen the own identity in the heart of Parisian block, with an image reminiscent of workshop-barns. The architecture, reflected by maximum optimization, responds to structural, regulatory and economic constraints.
To minimize the impact on the infrastructure of the existing parking, AZC had to make a slight elevation in volume.
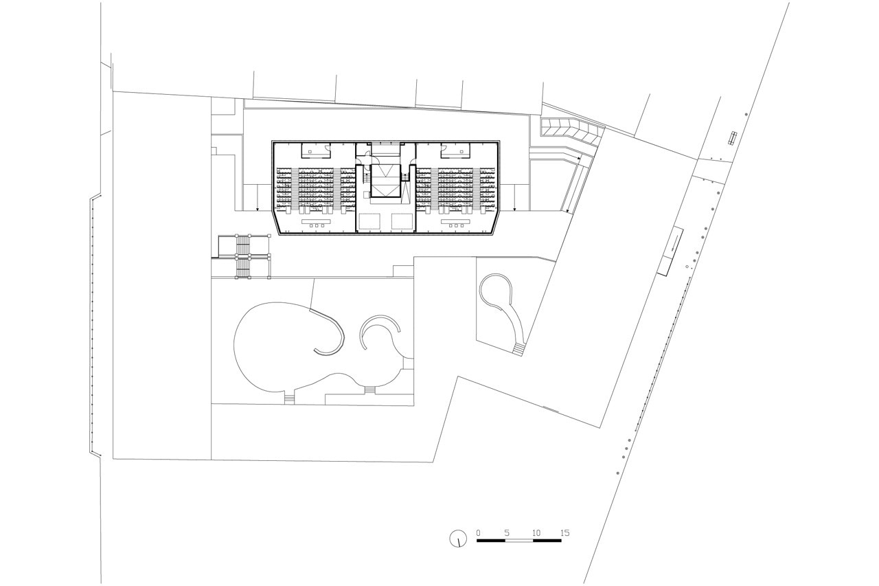
The construction system with metal standardized elements, allows the crossing large spans. To the south, the top of the amphitheater is cantilevered over the ground floor spaces, which gives free spaces for classrooms and offices.
In order to control the costs of the operation and specific facilities, but also to go the way of the constraints imposed by the site, accessible and walk-all has been opened to the public areas by grouping them into ground floor.
Conversely, all the technical installations rooms are housed at the top, under the roof and made invisible and inaccessible to the public. This distribution frees up precious space on the ground floor, to make it transparent and continuous with the deck. Although the development of the surroundings was initially outside the program, AZC managed to integrate the project budget by proposing uniform treatment of wood, which aims to extend the interior space of the rooms to the court which becomes a space of life and conviviality.
View gallery
Z:\03-Communication\02-Graphics\01-Mises en page\2013\05-BOOK\DESSINS\AUTOCAD\DESSINS BOOK - REALISATIONS 1 REALISTATION (1)
AZC-058-DW-PRT-PLAN RDC CONTEXTE aa2
C:\Users\utilisateur-30\DESSINS BOOK - REALISATIONS 1 REALISTATION (1)
C:\Users\utilisateur-30\DESSINS BOOK - REALISATIONS 1 REALISTATION (1)
Urban Barn, Université Paris Descartes, Paris
Program: auditorium
Architects: AZC
AZC team: Cyril Berthelet, Fabien Bargue, Bertrand Suvelier
Partners: Batiserf, Louis Choulet, Bureau Michel Forgue, VS-A, Batiss, Altia
Cost: 3,25 M€
Area: 906 sqm
Completion: 2014
