Facendo riferimento alla materialità e alla sensualità delle costruzioni rurali in Marocco, il padiglione si presenta come una reinterpretazione contemporanea delle strutture tradizionali di terra cruda.
L’adobe è collocato all’interno di enormi pannelli in legno prefabbricati che vengono poi montati su un telaio in acciaio. Questo metodo adatta l’uso di materiali tradizionali a metodi costruttivi industrializzati. Alla fine di Expo, i pannelli saranno smontati e riutilizzati.
Galleria
COUPE
Oualalou+Choi, Padiglione Marocco, “Marocco, un viaggio di sapori”, Expo Milano 2015. Sezioni
FACADE
Oualalou+Choi, Padiglione Marocco, “Marocco, un viaggio di sapori”, Expo Milano 2015. Prospetti
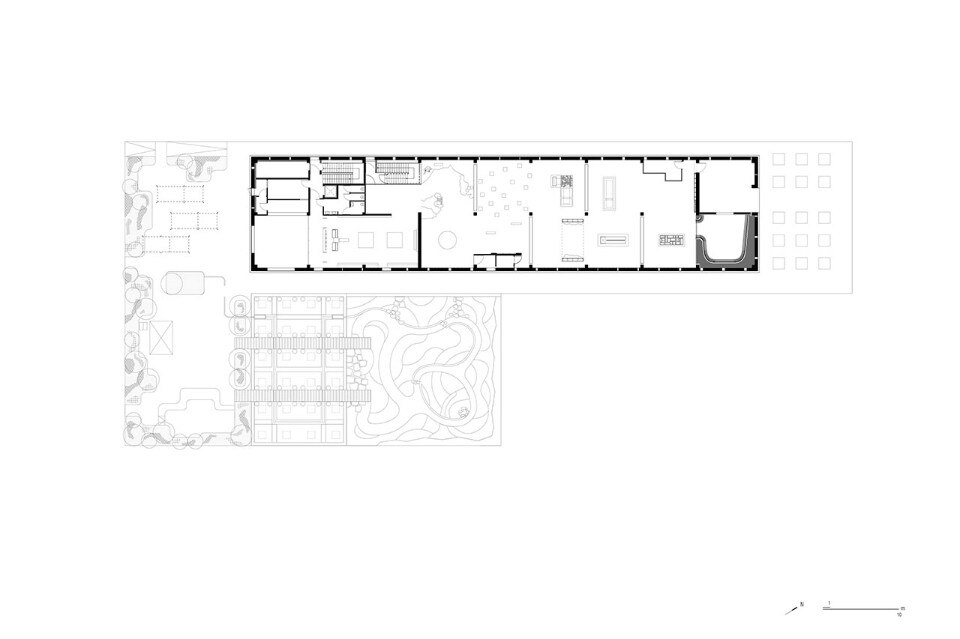
PLAN RDC
Oualalou+Choi, Padiglione Marocco, “Marocco, un viaggio di sapori”, Expo Milano 2015. Pianta del piano terra
Padiglione Marocco, “Marocco, un viaggio di sapori”, Expo Milano 2015
Architetti: Oualalou+Choi (Kilo)
Project Manager: Cristina Devizzi
Commissario per il Marocco: Fatim Zahra Ammor
Progetto paesaggistico: MB Paysages
Ingegneria: WIP, AIA
Allestimento: GL Events
Area: 1.300 mq
