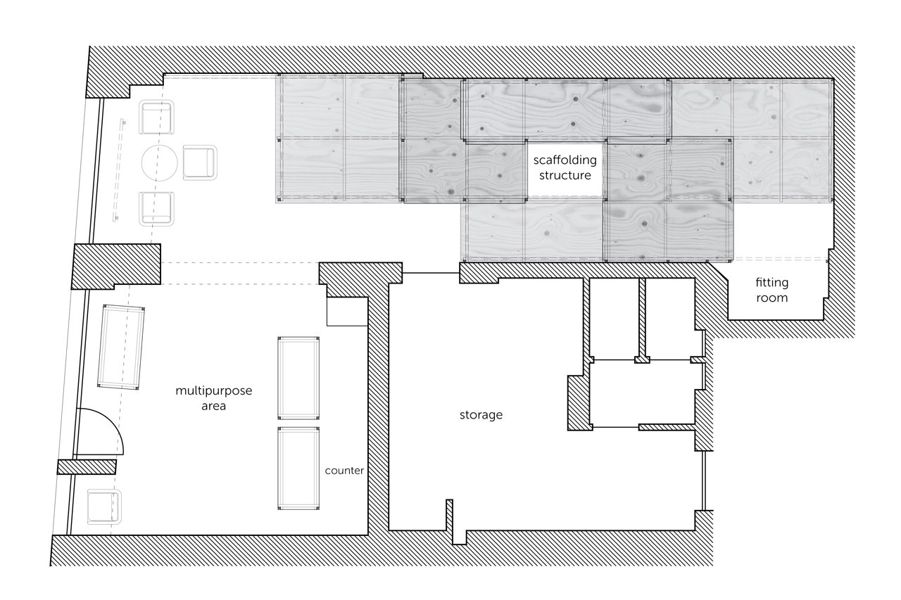
Lo spazio del negozio è stato suddiviso in due ambienit: uno anteriore, mobile, e uno posteriore, fisso. Lo spazio frontale è costituito da elementi mobili come il bancone, gli armadi e i set delle vetrine, che possono essere collegati, scollegati e spostati a seconda delle esigenze. Le travi in acciaio creano un grande quadro nello spazio posteriore, che occupa tutto il volume del negozio.
I tubi verticali trasferiscono l’intera massa della struttura a terra, dove poggiano su piastre a base quadrata per distribuire il carico. I sistemi di giuntutra del ponteggio permettono di posizionare le tavole di compensato ad altezze diverse, creando un gioco volumetrico. Una serie di micro spazi è stata creata utilizzando dei piani in rete stirata.
Le pareti interne e la struttura principale in acciaio sono dipinte di bianco per evidenziare i prodotti e per creare uno uno sfondo neutro per eventi futuri. L’installazione dei ponteggi fornisce la struttura per appenderei i vestiti e per gli scaffali in cui possono essere esposti oggetti in ceramica o gioielli. Faretti e lampade fluorescenti sono agganciati ai tubi orizzontali tramite tessuti leggeri che definiscono anche le aree dei camerini.
Il valore estetico della struttura industriale costituisce uno spazio intrigante. Essendo il ponteggio una struttura temporanea non ci sono elementi fissati alle pareti. Il layout flessibile può essere riconfigurato e trasformato in molti modi, trasformandosi in passerella, pista da ballo o spazio per workshop. La struttura è stata realizzata da due persone in due giorni, con il solo utilizzo di una chiave.
Galleria
C:\Users\mmx\Documents\NMV\PROJECT\CAD\140205 Rzut Model (1)
No Wódka, Berlino
Tipologia: negozio
Architetti: Kontent (Monika Ryszka, Marcin Giemza)
Collaborazione: Jakub Kubiński
Area: 86 mq
Completamento: 2014
