Studio di progettazione: Anonimous + G3 + Jesús Vassallo
Nome del progetto: Casa Selva
Luogo: Tulum, Messico
Dimensioni: 6.503 sqm
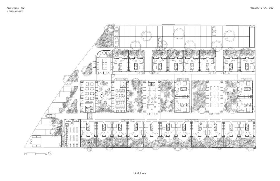
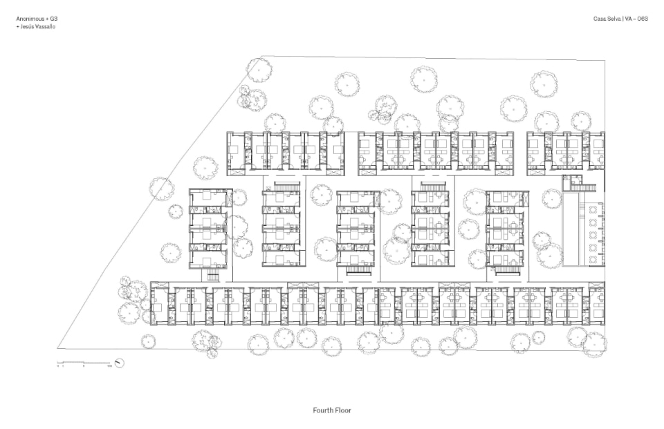
Ai margini di Tulum, una meta turistica messicana molto ambita, Anonimous + G3 + Jesús Vassallo hanno progettato un complesso residenziale ad alta densità che integra intensità espressiva e qualità spaziale. I volumi scarni e rigorosi in cemento scuro evocano il romanticismo di un paesaggio ancestrale immerso nella foresta, e la composta monumentalità di un brutalismo delle origini. L’intervento comprende 200 alloggi a prezzi accessibili per il personale che lavora nella locale industria del turismo e della ristorazione, e presenta un impianto rigoroso e compatto che ibrida il blocco a corte con la tipologia lineare. Gli edifici di quattro piani si intrecciano in una configurazione a pettine e sono intervallati da una rete di cortili punteggiati da vegetazione tropicale, connessi tra loro da percorsi pedonali e spazi pubblici. Lungo i corridoi comuni, schermature frangisole - evocative del tradizionale cobogò sudamericano - rendono porosa la massa costruita, e la arricchiscono di drammatici giochi chiaroscurali. Ai piani, gli alloggi semplici e funzionali godono di affacci opposti, a beneficio di generosa illuminazione naturale, ventilazione incrociata e interazioni continue con il paesaggio vegetale.
