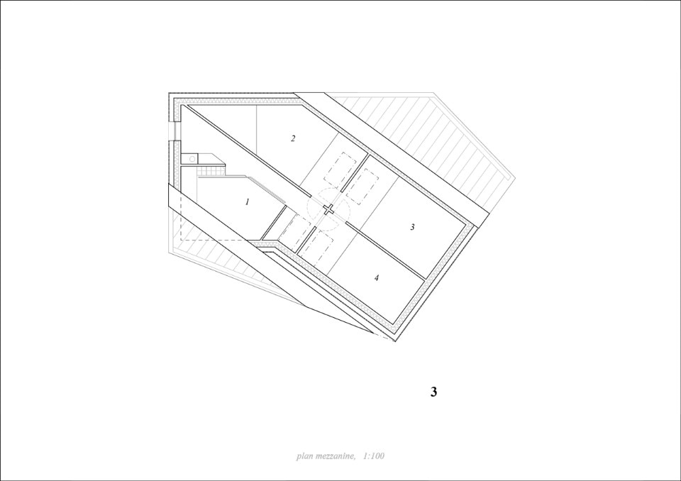
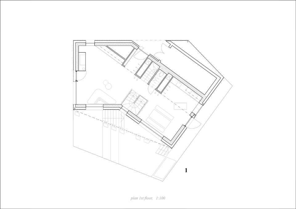
Situato sulla penisola di Jollas, a pochi chilometri dal centro di Helsinki, MK5 è l’ultimo progetto dello studio Ortraum Architects. L’edificio è immerso nel paesaggio naturale, che viene inquadrato da diverse aperture. Gli interni accolgono le viste mutevoli e le diverse qualità della luce durante l’arco della giornata. Al piano terra, il soggiorno è un ambiente aperto a cui si accede da nord. Al piano interrato troviamo la sauna e gli spazi di servizio, mentre al livello superiore sono collocate le quattro camere da letto.
Galleria
La struttura del progetto è formata da elementi di legno lamellare a strati incrociati personalizzati. Il legno di larice siberiano è utilizzato per la facciata, il pavimento e gli arredi. Le finestre sono incorniciate con elementi di rame prefabbricati e su misura. I materiali della facciata sono stati scelti per permettere all’edificio di creare un patina naturale e invecchiare gradualmente e con grazia. Sul lato meridionale dell’edificio sono stati tesi dei cavi verticalmente, che permettono alle piante di arrampicarsi e creare uno “schermo verde”, che fornisce un ulteriore protezione dalla strada.
- Progetto:
- MK5
- Luogo:
- Helsinki
- Tipologia:
- casa unifamiliare
- Architetto:
- Martin Lukasczyk – Ortraum Architects
- Strutture:
- Asko Keronen
- Impianti:
- Harri Ripatti, Leino Kuuluvainen
- Superficie:
- 230 mq
- Completamento:
- 2017
