Galleria
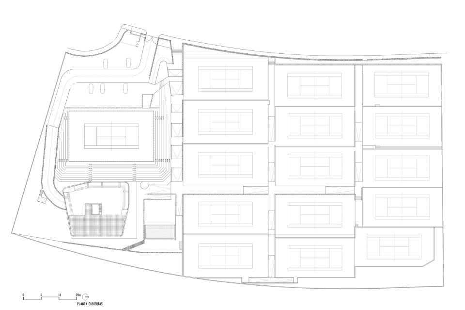
L’importante contesto naturale definisce il progetto. La topografia del terreno ha richesto una strategia di terrazzamenti, in modo da assecondare la pendenza della collina. L’edificio stesso è concepito come una continuazione dei terrazzamenti: le due grandi terrazze sospese, blocchi di cemento bianco, si affacciano sul campo da tennis principale. Essendo posizionato sulla parte più alta del lotto, l’edificio funziona come terrazza panoramica che guarda tutti i campi da gioco, specialmente quello sottostante, vero e proprio cuore del progetto.
Galleria
Terrazze del Tennis, Santa Ponsa, Maiorca, Spagna
Tipologia: clubhouse
Architetti: GRAS arquitectos
Team di progetto: Guillermo Reynés, Álvaro Pérez, Mayca Sánchez, Xim Barceló, Marta Wieczorkiewicz e András Papp
Ingegneria: Andreu Ortiz
Gestione del sito: Vicente Juan
Costruzione: EGOS
Superfici: 1.130 mq
Completamento: 2016
