I riflessi aiutano a frammentare la lunga parete in diverse parti e allo stesso tempo richiamano l’attenzione dei passanti.
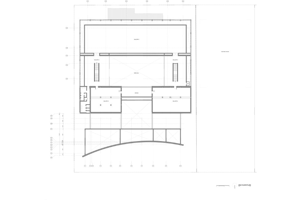
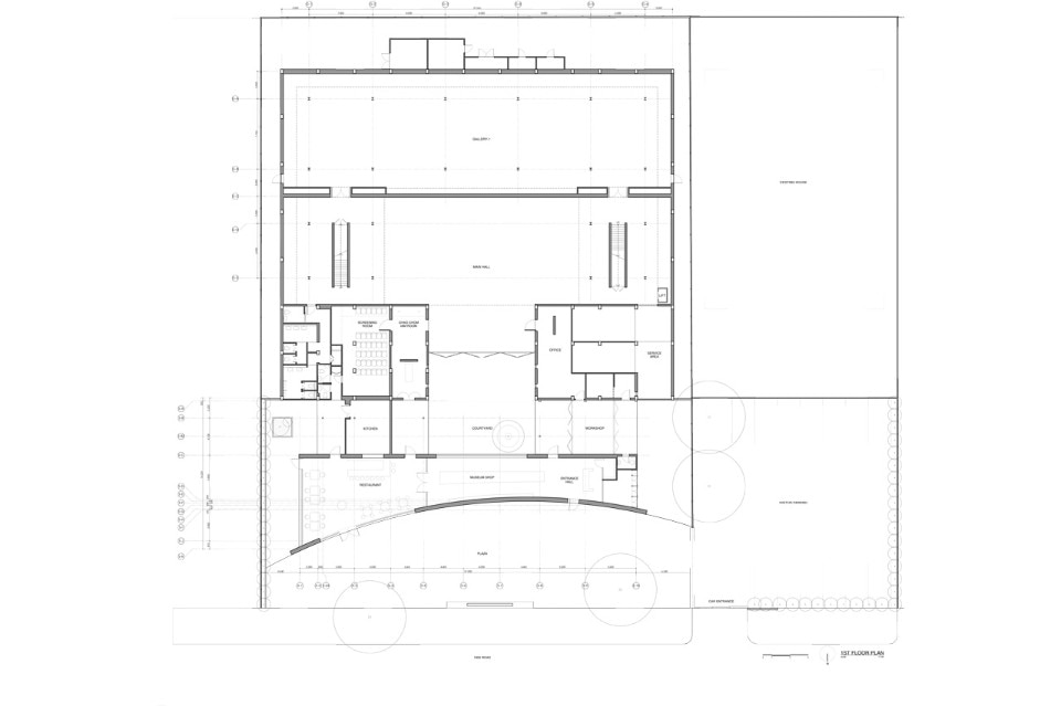
Galleria
MAIIAM Contemporary Art Museum, Sankampheng, Thailand
Tipologia: museo
Architetti: all(zone)
Team di progetto: Rachaporn Choochuey, Sorawit Klaimak, Asrin Sanguanwongwan, Aroonrod Supreeyaporn in collaboration with Sarin Nilsonthi
Ingegneria: Next Innovation
Lighting Design: Kris Manopimok
Paesaggio: Rachaniporn Tiempayotorn
Costruzione: Urban Form
Superficie: 3.330 mq
Completamento: 2016
