Archivio Digitale Domus PRO

La Maison Haute

Grazie agli spazi compatti che interagiscono attraverso doppie e triple altezze, la casa sul lago disegnata da Atelier Pierre Thibault è immersa nelle foreste canadesi. 

Atelier Pierre Thibault, La Maison Haute, Le Clair, Québec, 2016
La Maison Haute è un progetto di Atelier Pierre Thibault che rafforza il rapporto tra i suoi abitanti, il contesto naturale e la vista sul Lac Clair, in Quebec, Canada.
Situata su uno spiazzo nel bel mezzo di una ripida collina, la casa è circondata da alberi secolari e un fiume molto stretto. La composizione architettonica offre un’atmosfera protetta in una situazione vertiginosa. Nonostante la sua compattezza, presenta spazi che interagiscono tra loro grazie alle doppie e triple altezze, offrendo una vista mozzafiato sul bosco.
Atelier Pierre Thibault, La Maison Haute, Le Clair, Québec, 2016
Atelier Pierre Thibault, La Maison Haute, Le Clair, Québec, 2016
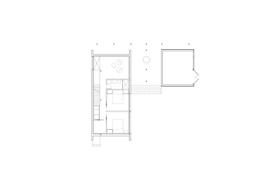
La camera da letto matrimoniale si affaccia sul lago situato a poca distanza, dando l’impressione di essere una baita in alta montagna, con il lago intravisto tra gli alberi. Accanto al volume principale vi è una struttura più piccola che ospita una stanza separata dalla quale si possono apprezzare i cambiamenti delle stagioni. 

La Maison Haute, Lac Clair, Québec, Canada
Tipologia: casa unifamiliare
Architetti: Atelier Pierre Thibault
Team di progetto: Pierre Thibault, Julie Poisson, Mathieu Leclerc
Completamento: 2016

Ultimi articoli di Architettura

Altri articoli di Domus

China Germany India Mexico, Central America and Caribbean Sri Lanka Korea icon-camera close icon-comments icon-down-sm icon-download icon-facebook icon-heart icon-heart icon-next-sm icon-next icon-pinterest icon-play icon-plus icon-prev-sm icon-prev Search icon-twitter icon-views icon-instagram