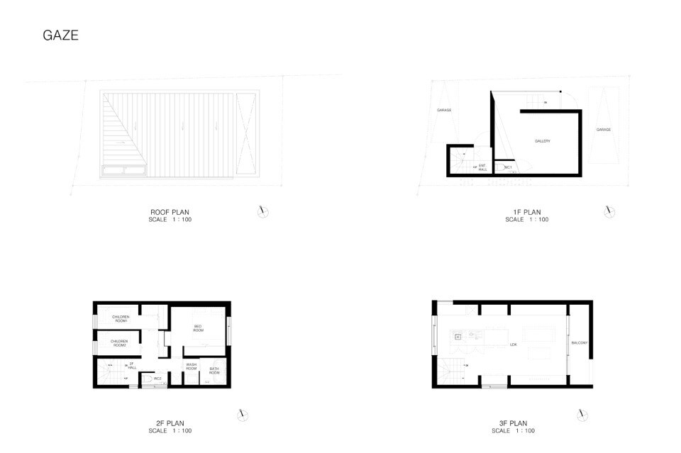
Galleria
Gaze, Obu city, prefettura di Aichi, Giappone
Tipologia: casa unifamiliare e galleria d'arte
Architetto: Satoshi Kurosaki / APOLLO Architects & Associates
ingegneria strutturale: Nomura Structure (Nomura Motoi)
Ingegneria meccanica: Naoki Matsumoto
Illuminazione: SIRIUS LIGHTING OFFICE
Area del sito: 82,73 mq
Completamento: 2015
