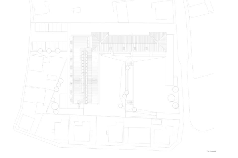
Una grande serie di vincoli specifici ha condizionato direttamente il progetto: l’alto livello della falda freatica e la bassa capacità portante del terreno hanno condizionato la posizione del nuovo fabbricato, collocato su un sostrato roccioso. Inoltre, il contesto storico e i regolamenti cittadini implicano un limite all’altezza dell’edificio che si uniforma visivamente al quartiere circostante.
Il nuovo edificio è collegato al bordo di quello esistente creando così un ingresso al crocevia dei flussi e creando un collegamento tra la piazza del mercato in Est e i giardini dal lato opposto.
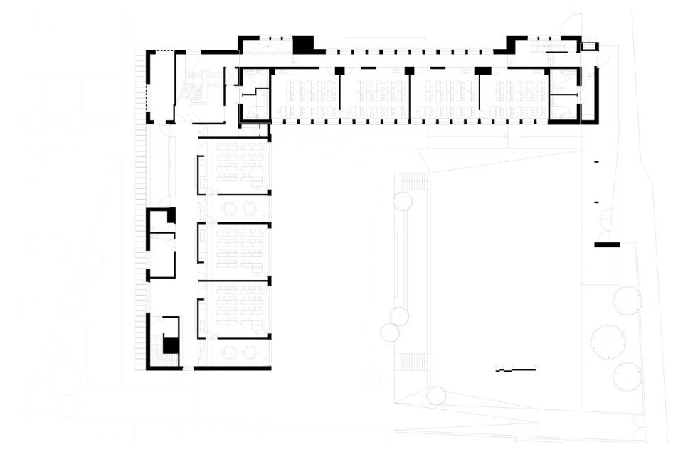
L’ampio ingresso trasparente accoglie una scala in cemento monolitico che raggiunge tutti i livelli di entrambi gli edifici. Al piano terra, i bambini hanno accesso alle parti comuni della scuola: la sala polifunzionale e la sala computer.
Tutte le aule si trovano nei livelli superiori a sbalzo sull’ingresso. All’interno come all’esterno, il progetto è definito da un rapporto tra materie prime nobili: calcestruzzo, elementi in legno naturale, fibra di legno all’interno dei pannelli del soffitto, mattoni fatti a mano, pannelli in legno e alluminio opaco laccato per le facciate e zinco per il tetto.
Due ampi lucernari di 30 metri di lunghezza sul tetto portano una gran quantità di luce naturale all’interno dell’edificio, e funzionano come semplice sistema per ventilare naturalmente le aule d’estate.
Galleria
Benfeld Aristide Briand Primary School, Benfeld France
Tipologia: edificio scolastico
Architetto: Lionel Debs Architecture
Team di progetto: BGA
Strutture: Mcis
Ingegneria meccanica: Jost
Estimo: Les économistes
Pianificazione e organizzazione: C2Bi
Costo: 2.850.000 €HT
Area: 1500 mq
Completamento: 2015
