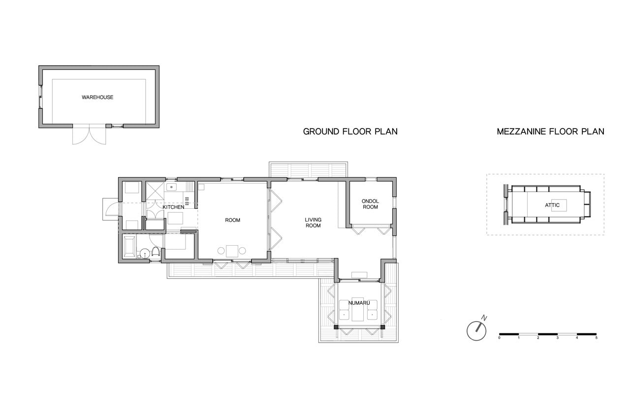
Il proprietario di Gan-chung Jae voleva un Numaru, uno spazio unico dell’architettura coreana, aperto in tre direzioni e sopraelevato per godersi l’estate. Si sporge dal lato anteriore della casa come un naso in una faccia umana. Dietro il Numaru, vi è una sala Ondol, un sistema di riscaldamento a pavimento coreano, che prevede l’installazione di un ipocausto a legna.
Il Numaru è per le regioni meridionali calde mentre l’Ondol è per quelle settentrionali, fredde. Gli architetti hanno creato una commistione tra tradizone e contemporaneità appendendo un Numaru alla costruzione in legno occidentale e applicando due diversi sistemi di riscaldamento – il sistema Ondol tradizionale con ipocausto in una piccola stanza e il riscaldamento ad acqua calda nelle altre camere.
Galleria
Casa a Macheon, Corea del Sud
Tipologia: casa unifamiliare
Architetti: studio_GAON (Hyoungnam Lim, Eunjoo Roh)
Team di progetto: Sungpil Lee, Minjung Choi, Sangwoo Yi, Seongwon Won, Hanmoe Lee, Soyae Baek, Joowon Moon
Area: 88,23 mq
Completamento: 2013
