Il dialogo tra i due edifici si avverte sia dall’interno sia dall’esterno. L’ampliamento non ha stravolto la struttura preesistente. Anche i materiali impiegati nel nuovo edificio fanno riferimento alla tipologia del fienile mediante l’applicazione di sottostrutture in legno, tappi e parti in legno per il rivestimento delle pareti.
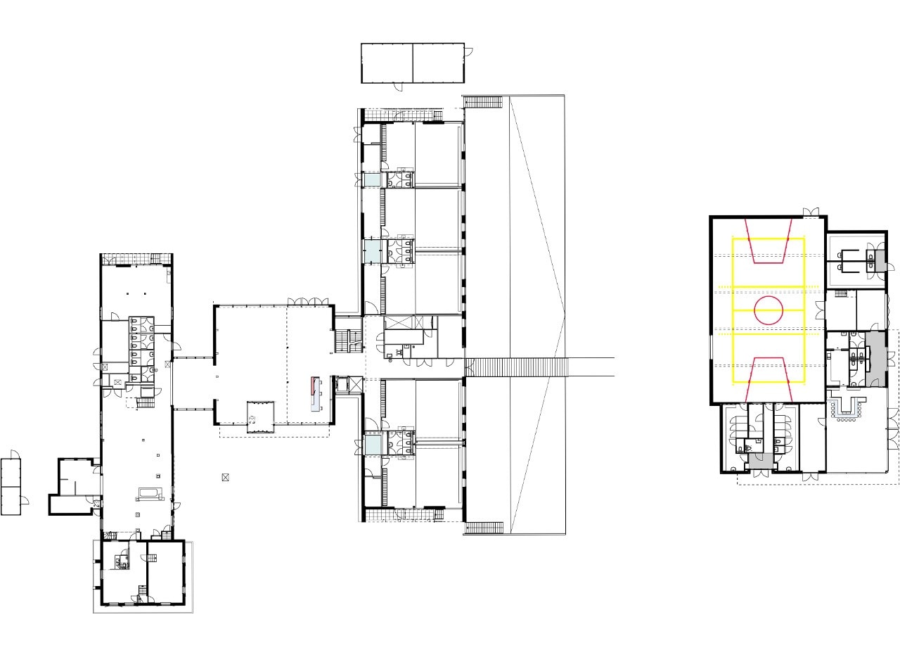
Il vecchio fienile ospita le aule e la biblioteca. A causa dell’inclinazione anche i piani inferiori ricevono sufficiente luce solare. L’aspetto luminoso delle aule sono un loro elemento caratteristico, assieme all’utilizzo di materiali naturali e in rapporto diretto con il paesaggio circostante.
Nel vecchio casale sono state situate le funzioni amministrative della scuola, una sala pranzo per 100 bambini, una cucina, un asilo nido e un laboratorio per la manodopera locale. Gli impianti sportivi si trovano nell’edificio separato. Esso contiene una palestra, degli spogliatoi, la mensa e la clubhouse dell’associazione locale di pallamano. L’edificio è concepito come due volumi a incastro con tetti verdi inclinati, che rispettano la forma originaria e il carattere rurale della zona. Nella palestra si trova un’ampia finestra da cui si scorge il ponte che collega l'edificio principale, la scuola e le aree gioco esterne.
Intorno alla scuola vi sono diversi campi da gioco per soddisfare le diverse fasce di età.
GLi spazi esterni sono progettati dallo studio di design Van Ginneken ripartiti tra spazi verdi, posti a sedere e componenti educative, come per esempio un orto.
La divisione degli spazi avviene mediante l’utilizzo di siepi, recinzioni in legno e morbidi pendii. Nel parcheggio adiacente al sito i marciapiedi sono in ghiaia e si snodano tra i filari di alberi.
Come già detto, l’edificio è perfettamente integrato nell’ambiente e nel paesaggio circostante. La progettazione del paesaggio è stata fatta tenendo in considerazione gli obiettivi della scuola: un ambiente sano in cui i bambini imparano giocando anche le questioni di sostenibilità. Mediante l’utilizzo di acqua e materiali naturali si è voluto mostrare ai bambini come sia generata l’energia e si è voluto fare in modo che il contatto con questo tema fosse il più naturale possibile. L’edificio impiega energia solare, apparecchi a LED, sistemi di conservazione del freddo e del calore, sistemi di riutilizzo delle acque reflue e materiali d’intelaiatura come il rivestimento Accoya.
Early Childhood Centre. American School of The Hague
Wassenaar, The Netherlands
Architetti: Kraaijvanger
Architetto principale: Hans Goverde
Team: Annemiek Bleumink, Laurence Meulman, Patrick Keijzer en Nol van den Boer
Cliente: American School of The Hague
Fotografia: Ronald Tilleman
