Galleria
Il progetto è una residenza costruita interamente di cemento a vista, con spazi interni minimali e che necessita poca manutenzione. Una particolare attenzione è stata posta sulla necessità di stabilire una relazione fluida tra spazi interni ed esterni, per consentire ai residenti di vivere a contatto con il bosco. Se il guscio esterno e le partizioni interne sono di calcestruzzo a vista, i pavimenti sono di cemento levigato. Per evidenziare le aperture rispettando la matericità della casa, sono state installate delle finestre di alluminio anodizzato bronzo scuro.
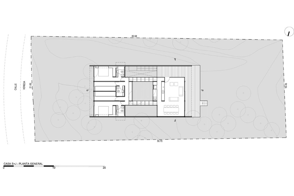
La casa è organizzata su due piattaforme a livelli diversi, collegate tra loro da scalinate e da uno spazio vuoto in cui la foresta di pini diventa parte della casa. Sulla piattaforma più bassa si trovano gli spazi comuni, con una grande terrazza aperta che si affaccia sul retro del lotto. I passaggi smaltati che collegano le piattaforme attraversano il vuoto centrale e sono immerse nella vegetazione. Il patio fa entrare la luce filtrata dalla chioma dei pini e introduce nell’abitazione l’energia vitale del bosco.
Casa S+J House, Costa Esmeralda, Argentina
Tipologia: casa unifamiliare
Architetto: Luciano Kruk
Collaboratori: Belén Ferrand, Andrés Conde Blanco, Darío Cecilian
Superficie: 189 mq
Completamento: 2016
