Architecture firm Nine has completed Zero-e ice cream cafe in the old town centre of Isola del Liri, in the Italian region of Lazio. The project aims to create a brand identity for the artisanal activity through graphics, interior architecture and furniture design.
View gallery
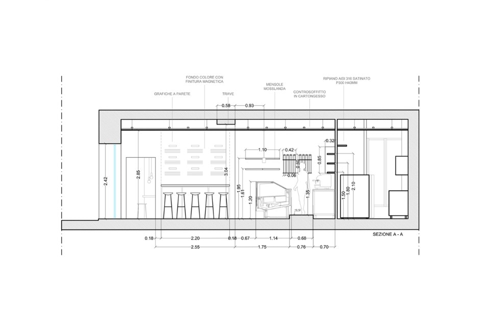
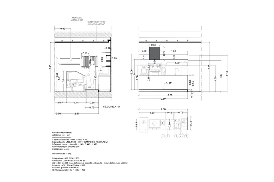
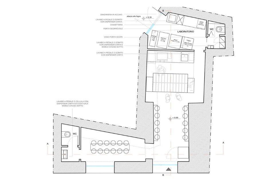
The design includes the transformation of a 38 sqm space, which is characterised by an irregular plan. The interior spaces are optimized to obtain a laboratory for the artisanal ice-cream production, a service area for the public and a seating area. The whole concept, from the graphics to the accessories, has been designed by Nine architecture and manufactured by local Italian artisans.
- Project:
- Zero-e ice cream cafe
- Program:
- Negozio/ ristorante
- Location:
- Isola del Liri
- Architects:
- Nine associati
- Area:
- 38 sqm
- Completion:
- 2017
