View gallery
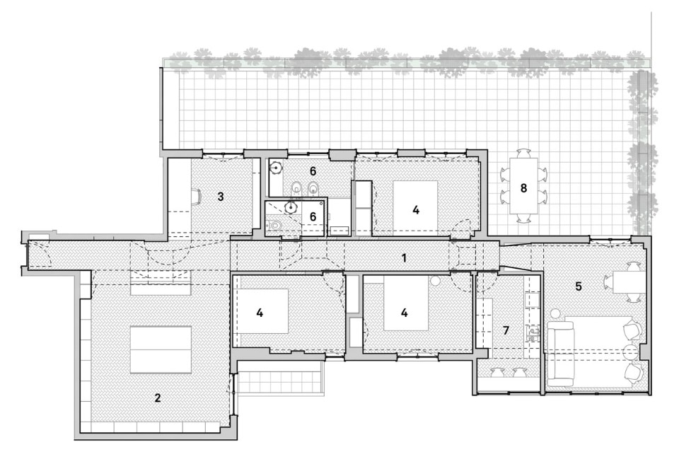
After the intervention, new elements appear such as the central furniture to put books, which simultaneously serves as a bench for the library, a light table and a cabinet, dividing and generating the space around it. The emphasis given to the library, along with the abundance of light in the corridor and the recreation of the same pattern for different materials on the floor, suggest the dilution of two types of usage. In this way, we are faced with the articulation of their multiple narratives and different levels of intimacy – so that the corridor can be the space for the grandchild to ride a tricycle and, at the same time, the shortest commute to work.
Apartment in Luciano Cordeiro, Lisbon
Program: apartment renovation
Architect: Aurora Arquitectos
Design team: Sérgio Antunes, Rui Baltazar, Sofia Reis Couto, Bruno Pereira, Carolina Rocha, Tânia Sousa
Area: 156 sqm
Completion: 2017
