The smile academy

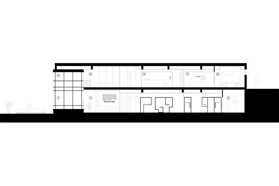
Slash Architects juxtaposed two large ‘boxes’ that host examination rooms for a double-height dental clinic located in Gaziantep, one of Turkey largest cities.

Slash Architects, The Smile Academy, Gaziantep, Turkey, 2017
The Smile Academy is a comfortable clinic with greenery, and a peaceful environment for both visitors and staff, designed by Slash Architects. The project site is on a boulevard in Gaziantep, one of the biggest cities in the east of Turkey.

 

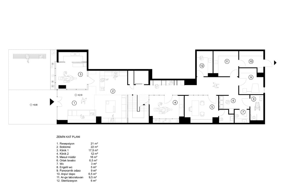
The double-height interior resembles a store typology, where the entrance has a big gallery opening with a huge glass facade and no other windows. Natural ventilation and natural light are particularly important elements, and the double-height ceiling inspired the designers for two examination rooms one on top of the other. The resulting “mega box” has a steel-structure and it is constructed on the front side of the clinic. Opposite, there is another clinic room “Mini Box” located on the mezzanine floor. These architectural elements appear on the main display window emphasizing the typology of the policlinic.

Slash Architects, The Smile Academy, Gaziantep, Turchia, 2017
Slash Architects, The Smile Academy, Gaziantep, Turchia, 2017

The Smile Academy, Gaziantep, Turkey
Program: dental clinic
Architects: Slash Architects
Area: 320 sqm
Main contractor: Yüksek Yapı ve Insaat
Completion: 2017

Latest on News

Latest on Domus

China Germany India Mexico, Central America and Caribbean Sri Lanka Korea icon-camera close icon-comments icon-down-sm icon-download icon-facebook icon-heart icon-heart icon-next-sm icon-next icon-pinterest icon-play icon-plus icon-prev-sm icon-prev Search icon-twitter icon-views icon-instagram