View gallery
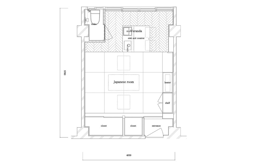
The guestroom consists of an eight-mat Japanese room with a tatami mat floor, a low table, and a a wooden-floored day-area, about the size of two tatami mats, with a sofa. Since the Japanese room and the wood-floored day-room were divided by sliding partitions, and there was a difference in height between the tatami room and the wooden day-room floors, it was difficult to use the guestroom as a whole. The designer had to create a space where guests could spend time more comfortably, and he also removed the sliding screens between the guestroom and the day-room, eliminating the difference in floor heights.
View gallery
Matsu no ma, Nakanojyō, Gunma, Japan
Program: guestroom renovation
Architect: Kunihiko Matsuba (Tyrant Inc.)
Area: 23 sqm
Completion: 2016
