View gallery
F:\99_WORK ARCHIVE\0182_BLAKEBURN\CAD\SHEETS\0182.00.103 RAS A1 (1)
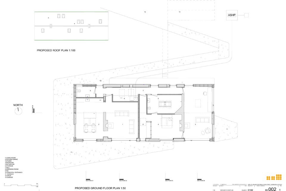
A449, Blakeburn cottage, plans
F:\99_WORK ARCHIVE\0182_BLAKEBURN\CAD\SHEETS\0182.00.007REAS A1 (1)
A449, Blakeburn cottage, sections
A full internal strip out allowed the architects to create flexible accommodation on one level, featuring double height space in all rooms that fully engages the roof pitch void. The client, a writer, works from home and the brief prioritised the quality and relationships between internal spaces. The internal arrangement was therefore conceived as a series of cellular spaces particular to her activities during the day. All rooms are linked by a corridor that runs the length of the north elevation, and also functions as a gallery.
Blakeburn cottage, Melrose, Scotland
Program: single family house renovation
Architects: A449
Structural engineering: SDC
Landscape architect: Rachel Smith
Contractor: Ainslie Contracting
Completion: 2016
