View gallery
Descente Blanc Marunouchi
1-5-1, 4F, Shin-marunouchi Building, Marunouchi, Chiyodaku, Tokyo
Design: Schemata Architects/Jo Nagasaka
Project team: Schemata Architects/Ryosuke Yamamoto+Ou Ueno+Shun Sato
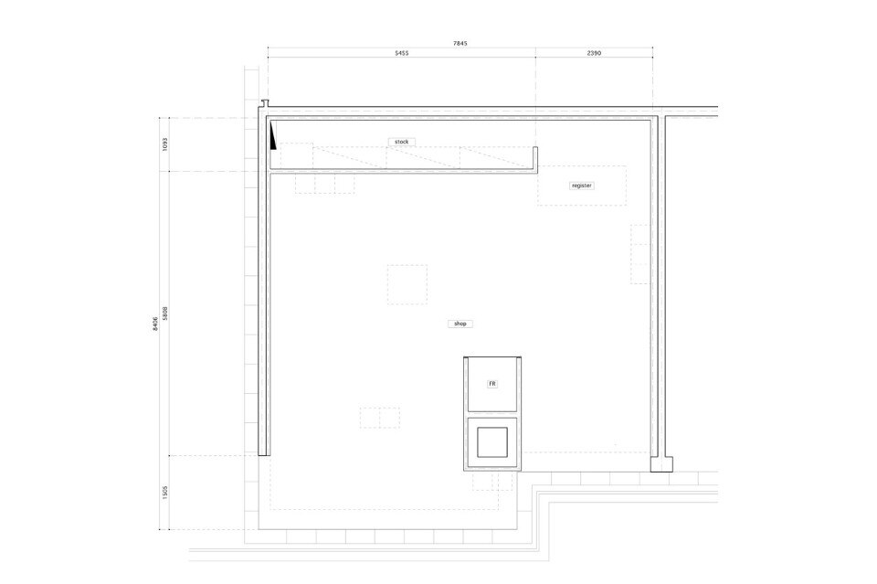
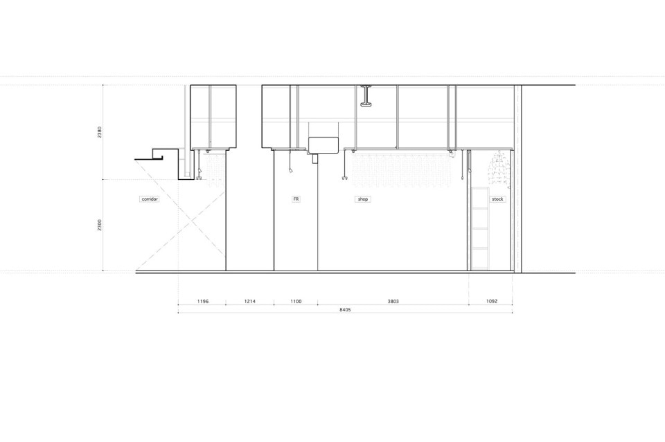
Programme: Apparel shop
Construction: TANK
Floors: 4
Area: 61.7 sqm
Structure: Steel
Completion: 9/2016
