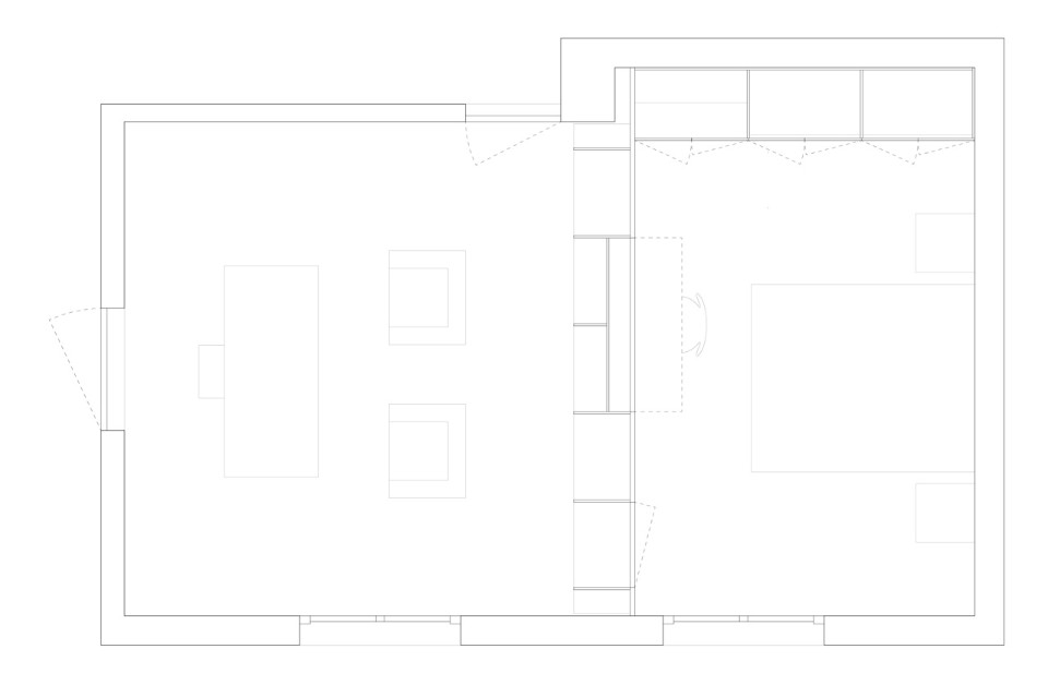
The first bookshelf stores the family’s large discs collection and a beamer for the home cinema. Behind the bookshelf lies a special space designed for children: a playroom with its tiny access door. A circular opening in the bookshelf allows the parents to keep an eye on the kids if necessary… or playfully.
The second room contents a large bookshelf for the office with a door that provides access to the bedroom. The au pair’s room has then a whole wall dedicated to a built-in closet with pine doors and a pastel interior finishing. Another wall opens to provide her with a foldaway desk. The bookshelves are made of oiled pine plywood structures that sit on various masonry feet, which come from recycled bricks and landscape edging elements.
On one side, the feet serve as a solid base for the bookshelves and on the other side, they emerge within the wood panel, giving to the walls a precious touch with jewellery-like incrustations.
A series of small accessories, including a podium for the kids, storages boxes and nightstands were also designed to furnish the newly created rooms for the whole family.
Inhabited wooden walls, Geneva, Switzerland
Program: apartment
Architects: Aurélie Monet Kasisi
Carpenter: Fabien Pont
Completion: 2015
