During the design process HofmanDujardin noticed surprising resemblances between the existing interior of Castalia and famous Dutch art and architecture. The ceiling of the grand café strongly reminds of the lighted ceiling Berlage designed for the Haags Gemeente Museum. The floor shows a resemblance to the floors painted by both Vermeer and De Hooch. In the entrance references to Dutch masters can be recognized as well. Graves seems to have been inspired by the arched ceiling design by Berlage. The floor refers to another painting by Vermeer.
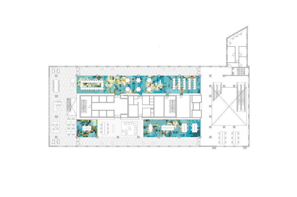
In the ceiling of the escalator hall the ceiling of Hunting lodge St. Hubertus designed by Berlage can be recognized. Also the lights used show a strong resemblance to Berlage’s original design. Inspired by Graves’s enlarging of Dutch classics, HofmanDujardin continued on this concept to bring colour and personality into the interior design. Over 30 paintings were selected on the theme ‘health and leisure’ for the Ministry of VWS in Castalia and on the theme ‘work’ for the offices of the Ministry of SZW in Helicon.
Each of these paintings was enlarged to the size of the floor plans and divided in a grid of 50x50 cm floor tiles. To match the richness of colour found in the original masterpieces, 70 additional colours were developed by HofmanDujardin in collaboration with the carpet supplier. The result is 30 stunningly colourful floor patterns that give each floor a unique and personal atmosphere.
View gallery
Z:\0000_OFFICE\MARKETING\PROJECTS\De Resident\Werkbestanden\press release\floorplans adjusted\dwg\1000 L(--) 2e 2e Helicon (1)
Z:\0000_OFFICE\MARKETING\PROJECTS\De Resident\Werkbestanden\press release\floorplans adjusted\dwg\1000 L(--) 2e 2e castalia (1)
Z:\0000_OFFICE\MARKETING\PROJECTS\De Resident\Werkbestanden\press release\floorplans adjusted\dwg\1000 L(--) 5e Layout1 (1)
Enlarging Dutch Classics, The Hague, The Netherlands
Program: workplace
Architects: HofmanDujardin
Atrium: cepezed
Installations, structural engineering and fire safety: Antea Group
Area: 55,000 sqm
Completion: 2015
