The Fifties flat, had a very logic and rational structure of rooms from different sizes along a central corridor. This classic structure could be a good organization for almost any use of the new program, just adding a link between the different spaces.
The project try to keep and restore the flat while transforming completely the attitude inside adding unphysical forms, space, erase, cut, clean.
View gallery
ch+qs Churtichaga+Quadra-Salcedo arquitectos, HUB flat, Madrid. Photo © Daniel Torrelló
ch+qs Churtichaga+Quadra-Salcedo arquitectos, HUB flat, Madrid. Photo © Daniel Torrelló
ch+qs Churtichaga+Quadra-Salcedo arquitectos, HUB flat, Madrid. Photo © Daniel Torrelló
ch+qs Churtichaga+Quadra-Salcedo arquitectos, HUB flat, Madrid. Photo © Daniel Torrelló
ch+qs Churtichaga+Quadra-Salcedo arquitectos, HUB flat, Madrid. Photo © Daniel Torrelló
P:\PROYECTOS\2008\0804_HUB_MAD\15_PUBLICACIONES , EXPOS Y PREMIOS\MATERIAL PUBLICACION\0805_130214_gen+flat Presentación1 (1)
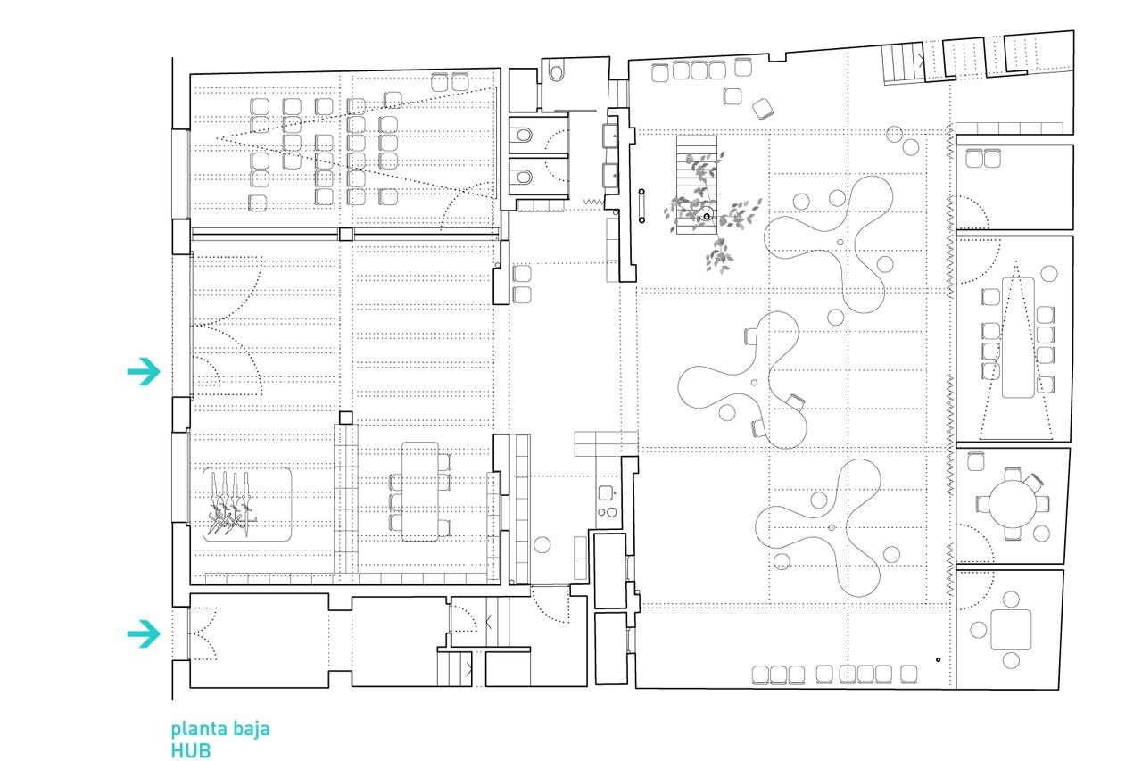
ch+qs Churtichaga+Quadra-Salcedo arquitectos, HUB flat, Madrid. Ground floor plan
P:\PROYECTOS\2008\0804_HUB_MAD\15_PUBLICACIONES , EXPOS Y PREMIOS\MATERIAL PUBLICACION\0805_130214_gen+flat Presentación1 (1)
ch+qs Churtichaga+Quadra-Salcedo arquitectos, HUB flat, Madrid. First floor plan
HUB flat, Madrid
Program: studio and living space
Architects: ch+qs Churtichaga+Quadra-Salcedo arquitectos
Completion: 2014
