Design firm: Khan Bonshek
Project name: Pyramid House
Location: Milton Keynes, United Kingdom
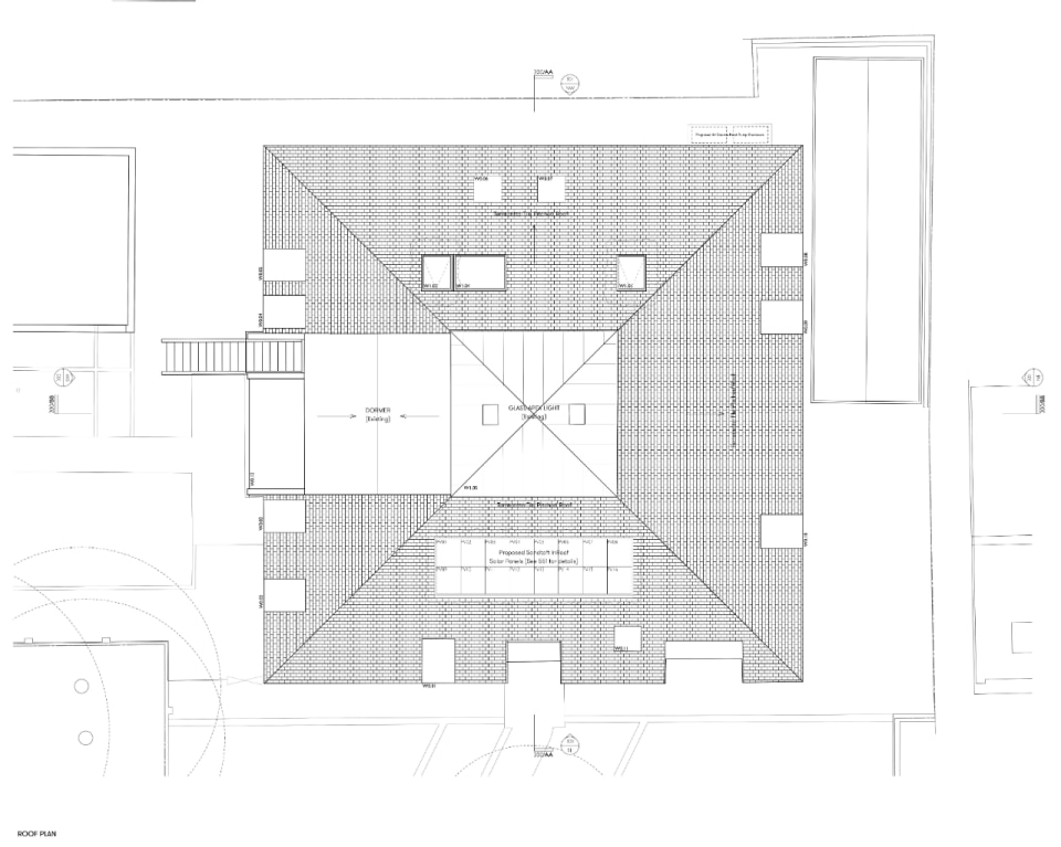
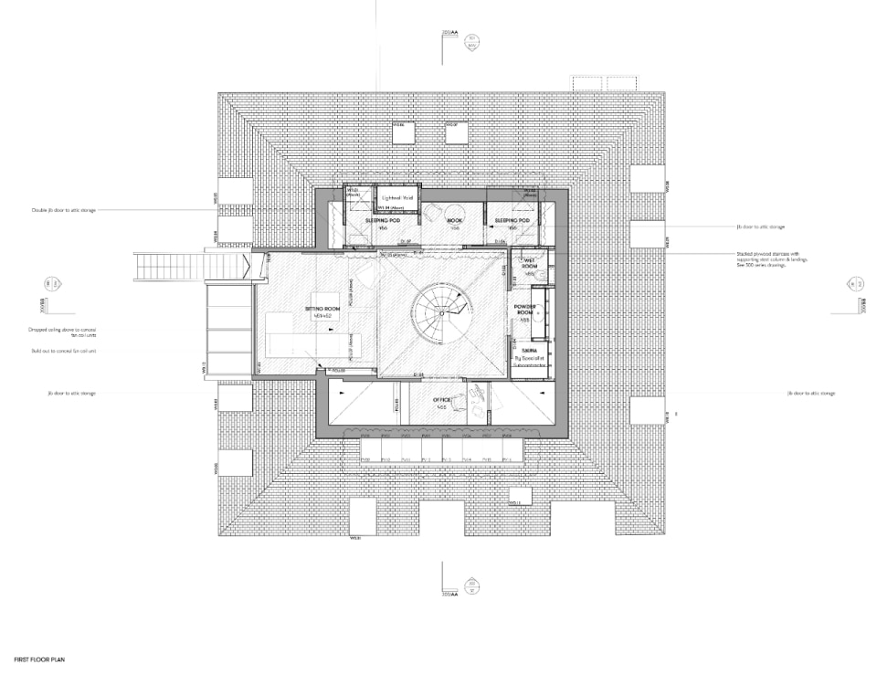
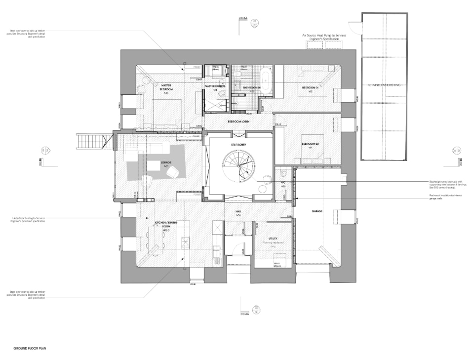
In Milton Keynes, a town that emerged as part of the new town movement in the 1960s, a postmodern house has been given a new lease of life. This is Pyramid House, one of 36 experimental homes built for the 1981 Homeworld Expo. The site was used to test new models of living. Today, this iconic building has been completely renovated by Khan Bonshek. Respecting the pyramid’s geometry, which is as playful as it is complex, the project integrates energy efficiency and a clear reorganization of circulation. This transforms the fragmented layout into a sequence of interconnected spaces that are meticulously calibrated to make use of every last inch of floor area. The centrepiece of the renovation is the handcrafted wooden spiral staircase, which serves as the structural backbone and a well of light for the three floors organised (from top to bottom) into work, living and relaxation zones. Natural terrazzo finishes and light oak surfaces further enhance the spaciousness of the rooms.
