Snøhetta has completed its fourth energy positive building in Telemark, Norway. Located in the historic industrial city of Porsgrunn in Vestfold and Telemark county, the new 11-storey building marks a symbolic continuation of the district's proud history, as the site is home to one of the largest hydroelectric power plants of the early 19th century. The new construction reduces its net annual energy consumption by 70% compared to similar new office buildings, and produces more energy than it will consume throughout its lifetime. The facade and roof facing southeast will generate about 256,000 times the annual energy consumption of an average Norwegian family, and the excess energy will be sold back to the energy grid.
Through standardized internal solutions and co-working spaces, tenants can scale their offices as needed, providing the flexibility needed in a global context where remote working solutions continue to increase demand.
“In trying to keep our planet as healthy as possible, we must seize this moment to prioritize sustainable design practices, and consider in particular how our work impacts human and non-human inhabitants,” says Kjetil Trædal Thorsen, founding partner of Snøhetta. “Although the gradual violence of the climate crisis may seem less acute than the rapid effects of viruses such as COVID-19, especially for those living in the North, we as architects have an interest in protecting our built and unbuilt environments. We need more industry alliances, such as Powerhouse, to push industry standards on what means to build sustainable buildings and cities on an economic, social and environmental scale.”
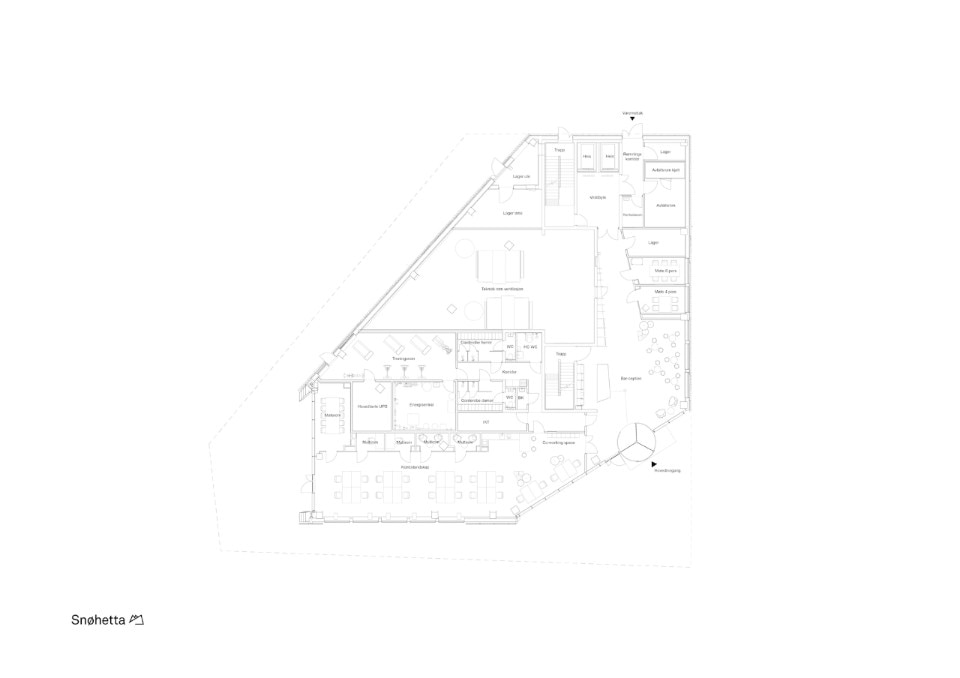
The slightly conical building has a 45° inclination on the east facing facade, which gives it a clearly identifiable expression and stands out in the industrial context of the Herøya Industrial Park that surrounds it. Inside, the building is functionally organized into an office space, which includes two floors of co-working spaces, a restaurant for shared staff, meeting spaces in the penthouse and a roof terrace overlooking the fjord. Two large staircases connect the ground floor and top floor of the building, from the reception desk to the staff restaurant and the penthouse meeting rooms.
- Project:
- Powerhouse Telemark
- Architects:
- Snøhetta
- Inerior design:
- Snøhetta
- Landscaping Design:
- Snøhetta
- Turnkey Contract:
- Skanska
- Technical drawing:
- Skanska teknikk e Asplan Viak
- Client:
- R8 Property
- Where:
- Porsgrunn, Norway
- Typology:
- office co-working
- Net surface:
- 7,931 mq
- Gross surface:
- 8,403 mq
- Plot size:
- 3,580 mq
- Completion:
- 2020
