Mirrored columns lift the muted red facade of the building above the ground, an invitation though the facade into a ground floor given over entirely to a reception area.
META Architecture Bureau and Storimans Wijffels Architects worked in collaboration with Tractebel on the design of Building M, a life sciences building for the University of Antwerp that is located in the Wilrijk district of the city. It follows on from an earlier design – Building O – a similarly elevated block designed for the school by META Architecture Bureau.
The pair of buildings, one dressed in red and the other in gold, stand facing eachother across a plaza.
View gallery
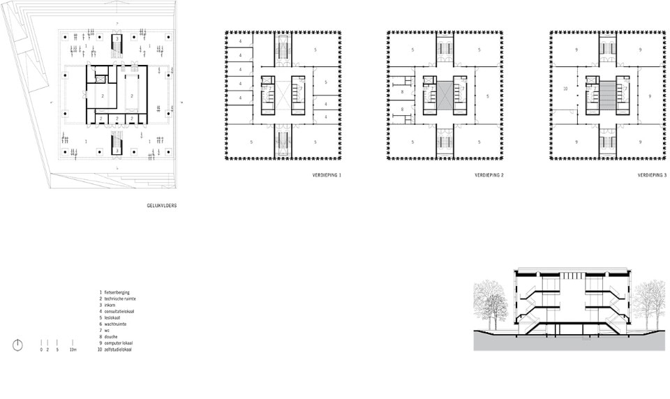
Two staircases rise through the north and south of the building, splitting the plan symmetrically. Consultation cubicles and classrooms are arranged around a central island containing toilets on the three upper floors.
Columnar windows in the facade and skylights allow light to permeate the spaces, which are finished with bare concrete walls and balustrades and galleries faced with pale-toned wood.
- Project:
- Building M
- Architects:
- META Architecture Bureau and Storimans Wijffels Architects with Tractebel
- Location:
- Campus Drie Eiken, Wilrijk, Antwerp, Belgium
- Landscape design:
- Urban Design & Landscape Architecture West 8
- Project leader:
- Frederik Bogaerts
- Project manager:
- Veerle Van Geldre
- Project team:
- Stijn Elsen, Rob Wesselink, Jeroen De Wael, Kevin Morlion, Ive De Maeseneire, Magda Morel,Hinde El Kassmi, TinekeDuysburgh, Marjolein Vandersickel
- Project management board:
- Marc De Smet
- Contractor:
- Strabag
- Safety coordinator:
- François Jordaens
